Цена
85 000 $
Комиссия риелтора: коммисия риелтора не указана
Телефоны:
- +38 (098) 074‑69‑39
Отправитель:
Юлия
Дуплекс з можливістю 2-рівневого планування!
Простір для життя, природа поруч і вигідна інвестиція!
Продається сучасний дуплекс у котеджному містечку Крюківщини, всього за 7 км від ТРЦ Мегамаркет.
Це місце, де міська інфраструктура поєднується з природною гармонією: за парканом ліс, а поруч школи, садочки, магазини, транспорт і навіть можливість облаштувати власний кабінет чи додаткову спальню на другому рівні.
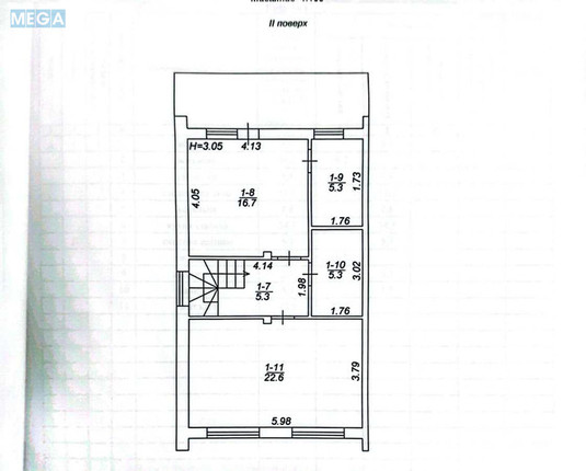
Будинок має площу 120 м2, додатковий мансардний поверх і простору терасу з виходом на зелену зону. Ділянка 2,05 сотки, з власним двором, заїздом і мангальною зоною.
Конструкція надійна: монолітно-стрічковий фундамент, стіни з теплого керамоблоку, утеплення мінеральною ватою, дах металочерепиця з паробар’єром.
Вікна двокамерні склопакети REHAU, фасад і вхідна група з екологічного термодерева. Підведено електрику 15 кВт (на балансі Київенерго), є власна свердловина та септик.
Планування передбачає три окремі кімнати, два санвузли, гардеробну, велику кухню-вітальню з панорамними вікнами, а також можливість облаштування додаткової кімнати з вікном під санвузол. Простора тераса ідеальне місце для вечірнього відпочинку або ранкової кави.
Котеджне містечко нове, з приємним сусідським оточенням, охайними вулицями та атмосферою спокою. Тут легко дихати, зручно жити й вигідно вкладати кошти.
Завдяки близькості до комплексу A-Клаб та активному розвитку району, ціни на нерухомість стабільно зростають.
Це не просто житло, а можливість створити власний простір у передмісті Києва, де кожен день починається з тиші, свіжого повітря і впевненості в завтрашньому дні.
Ціна 85000 або найкраща пропозиція. Можливий обмін на вашу нерухомість. Усі подробиці про будинок та про його придбання за телефоном.
Телефонуйте у будь-який час! Ми завжди раді вам допомогти!
Надаємо повний спектр послуг з купівлі та продажу квартир та будинків.
Великий досвід допомоги по купівлі квартир за державними програмами:
1) Є-оселя
2) Житло для ВПО та військових (постанова 280)
3) Сертифікат на зруйноване житло
З нами безпечно, якісно, вигідно!
Простір для життя, природа поруч і вигідна інвестиція!
Продається сучасний дуплекс у котеджному містечку Крюківщини, всього за 7 км від ТРЦ Мегамаркет.
Це місце, де міська інфраструктура поєднується з природною гармонією: за парканом ліс, а поруч школи, садочки, магазини, транспорт і навіть можливість облаштувати власний кабінет чи додаткову спальню на другому рівні.
Будинок має площу 120 м2, додатковий мансардний поверх і простору терасу з виходом на зелену зону. Ділянка 2,05 сотки, з власним двором, заїздом і мангальною зоною.
Конструкція надійна: монолітно-стрічковий фундамент, стіни з теплого керамоблоку, утеплення мінеральною ватою, дах металочерепиця з паробар’єром.
Вікна двокамерні склопакети REHAU, фасад і вхідна група з екологічного термодерева. Підведено електрику 15 кВт (на балансі Київенерго), є власна свердловина та септик.
Планування передбачає три окремі кімнати, два санвузли, гардеробну, велику кухню-вітальню з панорамними вікнами, а також можливість облаштування додаткової кімнати з вікном під санвузол. Простора тераса ідеальне місце для вечірнього відпочинку або ранкової кави.
Котеджне містечко нове, з приємним сусідським оточенням, охайними вулицями та атмосферою спокою. Тут легко дихати, зручно жити й вигідно вкладати кошти.
Завдяки близькості до комплексу A-Клаб та активному розвитку району, ціни на нерухомість стабільно зростають.
Це не просто житло, а можливість створити власний простір у передмісті Києва, де кожен день починається з тиші, свіжого повітря і впевненості в завтрашньому дні.
Ціна 85000 або найкраща пропозиція. Можливий обмін на вашу нерухомість. Усі подробиці про будинок та про його придбання за телефоном.
Телефонуйте у будь-який час! Ми завжди раді вам допомогти!
Надаємо повний спектр послуг з купівлі та продажу квартир та будинків.
Великий досвід допомоги по купівлі квартир за державними програмами:
1) Є-оселя
2) Житло для ВПО та військових (постанова 280)
3) Сертифікат на зруйноване житло
З нами безпечно, якісно, вигідно!
| Поверхів | 2 |
| Кімнат | 4 |
| Площа будинку | 120 кв.м |
| Площа ділянки | 2.05 сотки |
| Матеріал будинку | кирпич |




