Продаж комерційної нерухомості, 175,90 кв.м, под магазин
Миколаїв, Центрульний р-н, проспект Миру, 22/2
Миколаїв, Центрульний р-н, проспект Миру, 22/2
Цена продажи
3 650 000 грн.
Комиссия риелтора: коммисия риелтора не указана
Телефоны:
- +38 (093) 799‑79‑76
Отправитель:
Віра
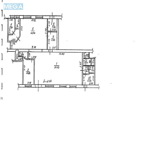
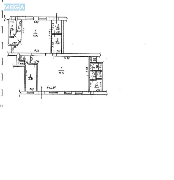
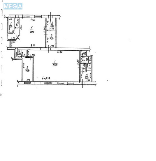
Нежитлове приміщення Піцерії, яке знаходиться на першому поверсі гуртожитка, загальною площею 175,9 кв.м., розташовані за адресою: м. Миколаїв, пр. Миру 22/2. Об’єкт має дуже велику ліквідність, якщо розглядати покупку в якості використання під продуктовий магазин та кулінарію. Поблизу не має в наявності інших продуктових магазинів, але попит на ці товари дуже великий. В районі знаходження майна великий спальний масив. План нерухомості знаходиться у фото.
Продаж в примусовому порядку.
В разі виникнення питань звертатись також на Viber, Telegram, Whatsup
Продаж в примусовому порядку.
В разі виникнення питань звертатись також на Viber, Telegram, Whatsup
| Тип пропозиції | только продажа |
| Призначення об’єкта | магазин |
| Площа | 175.9 кв.м |



