Цена
87 000 $
Комиссия риелтора: коммисия риелтора не указана
Телефоны:
- +38 (067) 616‑67‑38
Отправитель:
Profi Realt
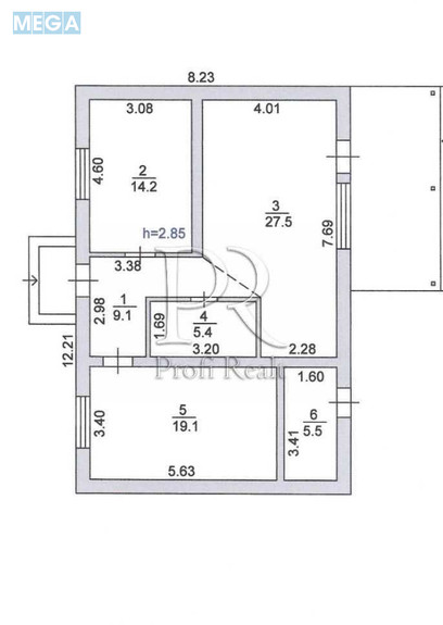
Продається сучасний одноповерховий 3-кімнатний будинок у с. Погреби, вул. Деснянська всього 3 км до Києва. Будинок збудований у 2024 році, розташований у приватному секторі на ділянці 6 соток. Загальна площа 102 м, житлова 86 м, простора кухня 27,5 м. Зручне планування дозволяє створити комфортний простір саме під ваші потреби. Стан під ремонт, що дає можливість реалізувати власний дизайн без переплат за чужі рішення. Інфраструктура поруч: супермаркет Сільпо (300 м), Фора (500 м), АТБ, спорткомплекс Атлетико, тенісні корти, центральний стадіон, школа, дитячий садок, амбулаторія. Тиха локація з швидким доступом до столиці ідеальний варіант для тих, хто хоче жити в приватному будинку поруч із Києвом. ID: 2929
| Кімнат | 3 кімнати |
| Площа (загальна/житлова/кухня) | 102/86/16 кв. м |
| Поверх | 1 поверх, останній |
| Поверховість будинку | 1 поверх |











