Продаж дома, 2 поверху, 255 кв.м, 4 кімнати, ділянка 8 соток
Запоріжжя, Заводський р-н, Солідарності
Запоріжжя, Заводський р-н, Солідарності
Цена
150 000 $
Комиссия риелтора: 3
Телефоны:
- +38 (097) 365‑93‑65
- +38 (095) 801‑43‑33
Отправитель:
Татьяна
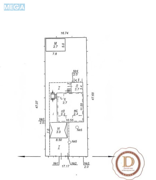
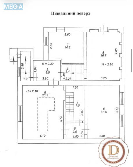
Пропонується до продажу двоповерховий будинок 255 кв.м окремий гостьовий будинок з лазней. Будинок розташований по вул. Солідарності,утеплений дах металочерепиця. Перекриття 2 поверхи дерев’яне, залите залізобетонною стяжкою. Вікна трьох камерні REHAO. У будинку є цокольний поверх, перший поверх з виходом на терасу, коридор, вітальня, кухня-студія, гостьовий санвузел, пральня зона/кімната, вхід у цокольний поверх. Другий поверх три спальні, одна має господарський санвузел та вбиральню. Світло 20 кВт (три фази) інтернет, система очистки води, резервна система забору води,газ, теплі водяні підлоги,кондиціонери. В гостьовому будинку парилка санвузел та кімната для відпочинку. Ділянка 8 соток,ландшафтний дизайн, автоматичним поливом газону, відеоспостереження, сигналізація, будинок під охороною. Уся мебель та техніка залишається.
| Поверхів | 2 |
| Кімнат | 4 |
| Площа будинку | 255 кв.м |
| Площа ділянки | 8 соток |
| Матеріал будинку | кирпич |























