Стандартне розміщення
Додати в обране
- Цена продажи
-
165 000 $
- Розташування
- Харків, Основ'янський (Червонозаводський) р-н, Гімназійна набережна, 22
- Відправник
-
- Телефони
-
- (067) XXX‑XX‑XX
- (067) XXX‑XX‑XX
- (067) XXX‑XX‑XX
- (050) XXX‑XX‑XX
- Тип пропозиції
- только продажа
- Призначення об’єкта
- офіс
- Площа
- 312.4 кв.м
Деталі пропозиції
продаж нежитлового приміщення: м.Харків, Гімназійна набережна, 22 (колишня Червоношкільна).
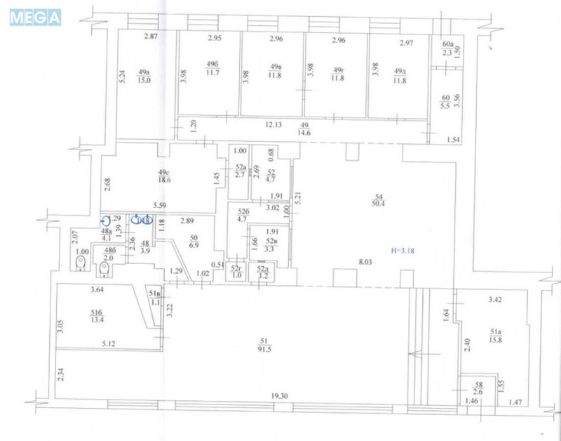
Характеристика приміщення:
Загальна площа - 312,4 кв.м., в т.ч. дві великі операційні зали площею 91,5 кв.м. та 50,4 кв.м.
Приміщення має два виходи: центральний (на Гімназійну набережну) та запасний (у двір житлового будинку).
Централізоване опалення, встановлена теплова рамка та лічильник.
Електропотужність - 15 кВт. Живлення напряму від підстанції, не від електромережі житлового будинку.
Встановлені лічильники на водопостачання, електроенергію, опалення.
Приміщення обладнане пожежно-тривожною сигналізацією.
Місцерозташування: центральна частина міста Харків, в 500 метрах від ст. метро Гагаріна. Район забудований житловими 9-поверховими будинками 60-80 х років, через дорогу від приміщення річка та набережна. По сусідству магазини, офіси.
Власник - юр.особа. Вартість із ПДВ.
Характеристика приміщення:
Загальна площа - 312,4 кв.м., в т.ч. дві великі операційні зали площею 91,5 кв.м. та 50,4 кв.м.
Приміщення має два виходи: центральний (на Гімназійну набережну) та запасний (у двір житлового будинку).
Централізоване опалення, встановлена теплова рамка та лічильник.
Електропотужність - 15 кВт. Живлення напряму від підстанції, не від електромережі житлового будинку.
Встановлені лічильники на водопостачання, електроенергію, опалення.
Приміщення обладнане пожежно-тривожною сигналізацією.
Місцерозташування: центральна частина міста Харків, в 500 метрах від ст. метро Гагаріна. Район забудований житловими 9-поверховими будинками 60-80 х років, через дорогу від приміщення річка та набережна. По сусідству магазини, офіси.
Власник - юр.особа. Вартість із ПДВ.










- Додано/оновлено
- 22.10.2025
Дивіться також
всі пропозиції в категорії продажа офисов в Харькове.