Стандартне розміщення
Додати в обране
- Цена продажи
-
109 700 $
- Розташування
- Київ, Голосіївський р-н, Михайла Максимовича вул., 26
- Відправник
-
Станіслав усі оголошення відправника
- Телефони
-
- (093) XXX‑XX‑XX
- (063) XXX‑XX‑XX
- Тип пропозиції
- только продажа
- Призначення об’єкта
- магазин
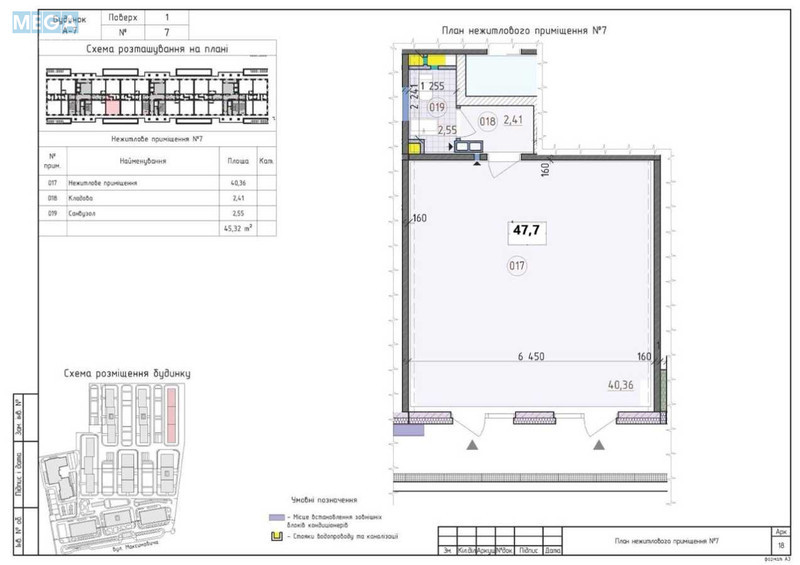
- Площа
- 48 кв.м
Деталі пропозиції
Велика Вивіска на проїзд у паркінг усього комплексу!
-Фасадне приміщення 47,7 кв.м, нежитловий фонд, окремий вхід, місце під велику вивіску, високі стелі Н=3,5 метра. Лічильники на воду електро, опалення (автономна котельня в комплексі). Приміщення розташоване в обжитому будинку "НЬЮКАСЛ".
-ЖК "Нова Англія" надзвичайне місто в місті, 14-будинків - це 4600 квартир, підземний та наземний паркінг, велика школа, дитячий садок, якісні дитячі майданчики, дитячі гуртки, спортивний майданчик, тенісний корт, міні-футбол, барбекю, салони, клініки, сімейний врач, майданчик для собак, кафе, ресторан, маркети. Метро "Васильківська" 10-15 хвилин пішки.
-Агентство нерухомості у "Новій Англії", ОПЕРАТИВНИЙ ПОКАЗ !!!
-Фасадне приміщення 47,7 кв.м, нежитловий фонд, окремий вхід, місце під велику вивіску, високі стелі Н=3,5 метра. Лічильники на воду електро, опалення (автономна котельня в комплексі). Приміщення розташоване в обжитому будинку "НЬЮКАСЛ".
-ЖК "Нова Англія" надзвичайне місто в місті, 14-будинків - це 4600 квартир, підземний та наземний паркінг, велика школа, дитячий садок, якісні дитячі майданчики, дитячі гуртки, спортивний майданчик, тенісний корт, міні-футбол, барбекю, салони, клініки, сімейний врач, майданчик для собак, кафе, ресторан, маркети. Метро "Васильківська" 10-15 хвилин пішки.
-Агентство нерухомості у "Новій Англії", ОПЕРАТИВНИЙ ПОКАЗ !!!






















- Додано/оновлено
- 20.10.2025
Дивіться також
всі пропозиції в категорії офисы в Киеве.