logo

Продаж комерційної нерухомості, 133,60 кв.м, под офис

Стандартне розміщення Додати в обране
Цена продажи
75 000 $
Розташування
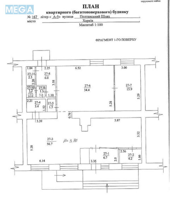
Харків, Холодногорський (Ленінський) р-н, Полтавський шлях, 167
Відправник
Телефони
  • (067) XXX‑XX‑XX
  • (067) XXX‑XX‑XX
  • (067) XXX‑XX‑XX
  • (050) XXX‑XX‑XX
показать
Тип пропозиції
только продажа
Призначення об’єкта
офіс
Площа
133.6 кв.м

Деталі пропозиції

продаж нежитлового приміщення: Харків, вул.Полтавський шлях, 167. Загальна площа 133,6 кв.м. Приміщення розташоване в 600 метрах від ст.метро Холодна Гора, на 1-му поверсі 5-поверхової житлової будівлі. Приміщення має два окремих входа (з червоної лінії та з двору). Приміщення було пошкоджено в результаті вибухової хвилі (розбите скло у вікнах, дверях, перегородках, вибиті двері в кабінетах, пошкоджені плитки на стелі, гіпсокартон на стінах), обладнане системами електропостачання, водопостачання та водовідведення, опалення (централізована система опалення, є окремий тепловий лічильник знаходиться в підвалі, за розміщення лічильника в підвалі сплачується орендна плата міськраді). В приміщенні є спліт-кондиціонер, шафа для підключення дизель-генератора. Дозволена електропотужність 10 кВт. Власник - юр.особа. Вартість із ПДВ.
Продаж комерційної нерухомості, 133,60&nbsp;кв.м, под офис, <a class="location-link" href="/kharkov/" title="Недвижимость Харків">Харків</a>, <a class="location-link" href="/kharkov/leninskij/" title="Недвижимость Холодногорський (Ленінський) район">Холодногорський (Ленінський) р-н</a>, Полтавський шлях, 167 (изображение 1) Продаж комерційної нерухомості, 133,60&nbsp;кв.м, под офис, <a class="location-link" href="/kharkov/" title="Недвижимость Харків">Харків</a>, <a class="location-link" href="/kharkov/leninskij/" title="Недвижимость Холодногорський (Ленінський) район">Холодногорський (Ленінський) р-н</a>, Полтавський шлях, 167 (изображение 2) Продаж комерційної нерухомості, 133,60&nbsp;кв.м, под офис, <a class="location-link" href="/kharkov/" title="Недвижимость Харків">Харків</a>, <a class="location-link" href="/kharkov/leninskij/" title="Недвижимость Холодногорський (Ленінський) район">Холодногорський (Ленінський) р-н</a>, Полтавський шлях, 167 (изображение 3) Продаж комерційної нерухомості, 133,60&nbsp;кв.м, под офис, <a class="location-link" href="/kharkov/" title="Недвижимость Харків">Харків</a>, <a class="location-link" href="/kharkov/leninskij/" title="Недвижимость Холодногорський (Ленінський) район">Холодногорський (Ленінський) р-н</a>, Полтавський шлях, 167 (изображение 4) Продаж комерційної нерухомості, 133,60&nbsp;кв.м, под офис, <a class="location-link" href="/kharkov/" title="Недвижимость Харків">Харків</a>, <a class="location-link" href="/kharkov/leninskij/" title="Недвижимость Холодногорський (Ленінський) район">Холодногорський (Ленінський) р-н</a>, Полтавський шлях, 167 (изображение 5) Продаж комерційної нерухомості, 133,60&nbsp;кв.м, под офис, <a class="location-link" href="/kharkov/" title="Недвижимость Харків">Харків</a>, <a class="location-link" href="/kharkov/leninskij/" title="Недвижимость Холодногорський (Ленінський) район">Холодногорський (Ленінський) р-н</a>, Полтавський шлях, 167 (изображение 6) Продаж комерційної нерухомості, 133,60&nbsp;кв.м, под офис, <a class="location-link" href="/kharkov/" title="Недвижимость Харків">Харків</a>, <a class="location-link" href="/kharkov/leninskij/" title="Недвижимость Холодногорський (Ленінський) район">Холодногорський (Ленінський) р-н</a>, Полтавський шлях, 167 (изображение 7) Продаж комерційної нерухомості, 133,60&nbsp;кв.м, под офис, <a class="location-link" href="/kharkov/" title="Недвижимость Харків">Харків</a>, <a class="location-link" href="/kharkov/leninskij/" title="Недвижимость Холодногорський (Ленінський) район">Холодногорський (Ленінський) р-н</a>, Полтавський шлях, 167 (изображение 8) Продаж комерційної нерухомості, 133,60&nbsp;кв.м, под офис, <a class="location-link" href="/kharkov/" title="Недвижимость Харків">Харків</a>, <a class="location-link" href="/kharkov/leninskij/" title="Недвижимость Холодногорський (Ленінський) район">Холодногорський (Ленінський) р-н</a>, Полтавський шлях, 167 (изображение 9) Продаж комерційної нерухомості, 133,60&nbsp;кв.м, под офис, <a class="location-link" href="/kharkov/" title="Недвижимость Харків">Харків</a>, <a class="location-link" href="/kharkov/leninskij/" title="Недвижимость Холодногорський (Ленінський) район">Холодногорський (Ленінський) р-н</a>, Полтавський шлях, 167 (изображение 10) Продаж комерційної нерухомості, 133,60&nbsp;кв.м, под офис, <a class="location-link" href="/kharkov/" title="Недвижимость Харків">Харків</a>, <a class="location-link" href="/kharkov/leninskij/" title="Недвижимость Холодногорський (Ленінський) район">Холодногорський (Ленінський) р-н</a>, Полтавський шлях, 167 (изображение 11) Продаж комерційної нерухомості, 133,60&nbsp;кв.м, под офис, <a class="location-link" href="/kharkov/" title="Недвижимость Харків">Харків</a>, <a class="location-link" href="/kharkov/leninskij/" title="Недвижимость Холодногорський (Ленінський) район">Холодногорський (Ленінський) р-н</a>, Полтавський шлях, 167 (изображение 12)
Додано/оновлено
23.10.2025

всі пропозиції в категорії продажа офисов в Харькове.

Оголошення №4073031
  • (067) XXX‑XX‑XX
  • (067) XXX‑XX‑XX
  • (067) XXX‑XX‑XX
  • (050) XXX‑XX‑XX
показати
Поділитися
поскаржитися на це оголошення
скасувати
Вашу скаргу успішно надіслано. Дякуємо, що повідомили про проблему. закрити повідомлення
Не можете знайти потрібну нерухомість? Залишіть заявку ріелторам Харькова Добавить заявку