logo

Продаж окремої будівлі/побудови, 3 100 кв.м

Стандартне розміщення Додати в обране
Цена продажи
2 250 000 $
Розташування
Бровари, Окружна
Відправник
Телефони
  • (096) XXX‑XX‑XX
показать
Тип пропозиції
только продажа
Тип об’єкта
окрема будівля/будівля
Площа
3100 кв.м

Деталі пропозиції

Продаж готового нового універсального, виробничо-офісного приміщення у м.Бровари (Броварська окружна - фасад)
Проект під автосалон СТО VIP класу
Вдале та практичне планування будівлі дозволяє легко перепланувати його під інший вид діяльності-виробництва.
Розвинута промислова інфраструктура та логістичне сполучення (15хв.метро Лісова)
Поруч склади РЦ Варус,Amway,Рабен,Розетка,Ікеа,РЦ,Євро Фреш Фрут,Торговий дім,Пері Україна,завод Сталтех.
Відстань до м.Київ(метро Лісова) 17км.
Відстань до міжнародного аеропорту Бориспіль 24км.
Поруч зупинка громадського транспорту
Асфальт підїзд (нове покриття)
Поруч місце розвороту зустрічного транспорту
Ділянка правильної форми широкий фасад
Площа земельної ділянки 1Га. У ВЛАСНОСТІ
Площа будівлі - 3,100кв/м. ЗДАНО В ЕКСПЛУАТАЦІЮ
Електроенергія 100кВт (можливість збільшення потужностей)
Центральна каналізація
Центральна вода
Газ на ділянці
Жилізобетонний каркас будівлі (не металевий)
Фундаменти монолітно стрічкові та стаканні на природній основі
Плити перекриття залізобетонні збірні та залізобетонним ригелям
Колони збірні залізобетонні
Внутрішні сходи збірні залізобетонні
Покриття будівлі виконане з металевих балок та прогонів,з утеплення з мінеральної вати товщиною 150мм по профнастилу.
Покрівля двосхила з ухилом 5% з покриттям з мембрани товщиною 1,5мм
Водовідвід з покрівлі будівлі зовнішній,організований по водостічних трубах в дощову каналізацію
Зовнішні вікна з подвійним склінням,металопластикові
Зовнішні двері засклені металеві
Зовнішні і внутрішні ворота металеві,утеплені
Зовнішні стіни будівлі з сандвіч панелей з утепленням з мінеральної вати товщиною 100мм
Ліфтова шахта
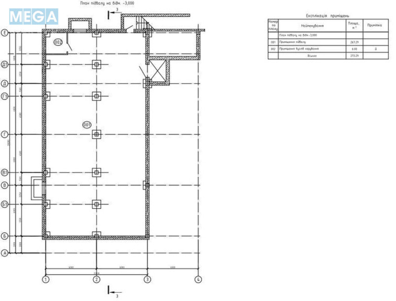
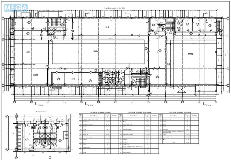
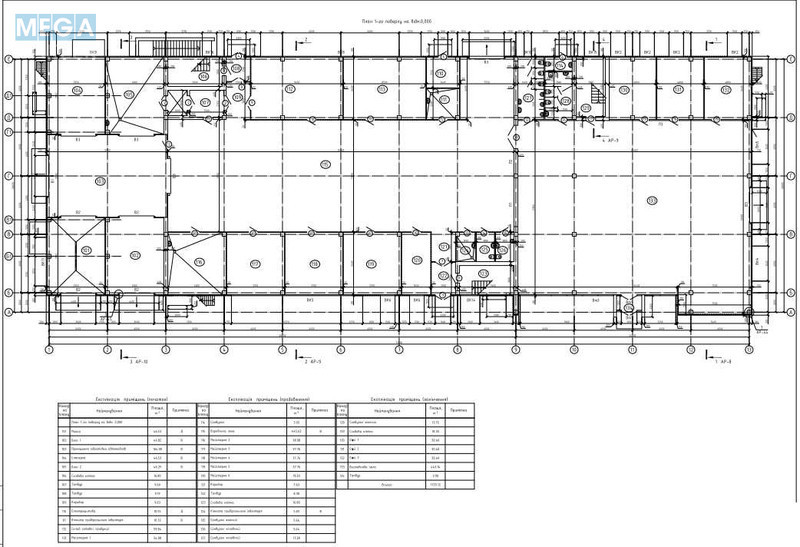
2 поверхи + підвал
Розміри в осях складають 26,0*72,0 м,
Висота потолків 3,07 м та 7,23 м,
Висота підвального поверху 3,0 м
Машинна штукатурка стін
Лазерна стяжка підлоги
Внутрішні перегородки приміщень та виробничої зони: типу сендвіч панелей з мінеральної вати товщиною 50-120мм., керамічної цегли -120мм.,газоблок 100мм.
У плануванні будівлі Автосалону-СТО передбачені такі приміщення як: мийка, бокси, приміщення підготовки автомобілів, слюсарна, сходові клітки, тамбура, коридори, електрощитова, кімната прибирального інвентаря, склад готової продукції, майстерні, санвузли, виробнича зона, офіси, виставкова зала, макетний цех, приміщення підготовки, швейний цех, кімнати відпочинку, каса, бухгалтерія, кімнати прийому їжі, оглядова площадка, технологічна площадка, кімната ІТ, жіночий та чоловічий гардероби вуличного, домашнього та спеціального одягу, душові, переддушова.
Продаж окремої будівлі/побудови, 3&nbsp;100&nbsp;кв.м, <a class="location-link" href="/brovary/" title="Недвижимость Бровари">Бровари</a>, Окружна (изображение 1) Продаж окремої будівлі/побудови, 3&nbsp;100&nbsp;кв.м, <a class="location-link" href="/brovary/" title="Недвижимость Бровари">Бровари</a>, Окружна (изображение 2) Продаж окремої будівлі/побудови, 3&nbsp;100&nbsp;кв.м, <a class="location-link" href="/brovary/" title="Недвижимость Бровари">Бровари</a>, Окружна (изображение 3) Продаж окремої будівлі/побудови, 3&nbsp;100&nbsp;кв.м, <a class="location-link" href="/brovary/" title="Недвижимость Бровари">Бровари</a>, Окружна (изображение 4) Продаж окремої будівлі/побудови, 3&nbsp;100&nbsp;кв.м, <a class="location-link" href="/brovary/" title="Недвижимость Бровари">Бровари</a>, Окружна (изображение 5) Продаж окремої будівлі/побудови, 3&nbsp;100&nbsp;кв.м, <a class="location-link" href="/brovary/" title="Недвижимость Бровари">Бровари</a>, Окружна (изображение 6) Продаж окремої будівлі/побудови, 3&nbsp;100&nbsp;кв.м, <a class="location-link" href="/brovary/" title="Недвижимость Бровари">Бровари</a>, Окружна (изображение 7) Продаж окремої будівлі/побудови, 3&nbsp;100&nbsp;кв.м, <a class="location-link" href="/brovary/" title="Недвижимость Бровари">Бровари</a>, Окружна (изображение 8) Продаж окремої будівлі/побудови, 3&nbsp;100&nbsp;кв.м, <a class="location-link" href="/brovary/" title="Недвижимость Бровари">Бровари</a>, Окружна (изображение 9) Продаж окремої будівлі/побудови, 3&nbsp;100&nbsp;кв.м, <a class="location-link" href="/brovary/" title="Недвижимость Бровари">Бровари</a>, Окружна (изображение 10) Продаж окремої будівлі/побудови, 3&nbsp;100&nbsp;кв.м, <a class="location-link" href="/brovary/" title="Недвижимость Бровари">Бровари</a>, Окружна (изображение 11) Продаж окремої будівлі/побудови, 3&nbsp;100&nbsp;кв.м, <a class="location-link" href="/brovary/" title="Недвижимость Бровари">Бровари</a>, Окружна (изображение 12) Продаж окремої будівлі/побудови, 3&nbsp;100&nbsp;кв.м, <a class="location-link" href="/brovary/" title="Недвижимость Бровари">Бровари</a>, Окружна (изображение 13) Продаж окремої будівлі/побудови, 3&nbsp;100&nbsp;кв.м, <a class="location-link" href="/brovary/" title="Недвижимость Бровари">Бровари</a>, Окружна (изображение 14) Продаж окремої будівлі/побудови, 3&nbsp;100&nbsp;кв.м, <a class="location-link" href="/brovary/" title="Недвижимость Бровари">Бровари</a>, Окружна (изображение 15) Продаж окремої будівлі/побудови, 3&nbsp;100&nbsp;кв.м, <a class="location-link" href="/brovary/" title="Недвижимость Бровари">Бровари</a>, Окружна (изображение 16) Продаж окремої будівлі/побудови, 3&nbsp;100&nbsp;кв.м, <a class="location-link" href="/brovary/" title="Недвижимость Бровари">Бровари</a>, Окружна (изображение 17) Продаж окремої будівлі/побудови, 3&nbsp;100&nbsp;кв.м, <a class="location-link" href="/brovary/" title="Недвижимость Бровари">Бровари</a>, Окружна (изображение 18) Продаж окремої будівлі/побудови, 3&nbsp;100&nbsp;кв.м, <a class="location-link" href="/brovary/" title="Недвижимость Бровари">Бровари</a>, Окружна (изображение 19) Продаж окремої будівлі/побудови, 3&nbsp;100&nbsp;кв.м, <a class="location-link" href="/brovary/" title="Недвижимость Бровари">Бровари</a>, Окружна (изображение 20) Продаж окремої будівлі/побудови, 3&nbsp;100&nbsp;кв.м, <a class="location-link" href="/brovary/" title="Недвижимость Бровари">Бровари</a>, Окружна (изображение 21) Продаж окремої будівлі/побудови, 3&nbsp;100&nbsp;кв.м, <a class="location-link" href="/brovary/" title="Недвижимость Бровари">Бровари</a>, Окружна (изображение 22) Продаж окремої будівлі/побудови, 3&nbsp;100&nbsp;кв.м, <a class="location-link" href="/brovary/" title="Недвижимость Бровари">Бровари</a>, Окружна (изображение 23) Продаж окремої будівлі/побудови, 3&nbsp;100&nbsp;кв.м, <a class="location-link" href="/brovary/" title="Недвижимость Бровари">Бровари</a>, Окружна (изображение 24) Продаж окремої будівлі/побудови, 3&nbsp;100&nbsp;кв.м, <a class="location-link" href="/brovary/" title="Недвижимость Бровари">Бровари</a>, Окружна (изображение 25)
Додано/оновлено
07.12.2025

всі пропозиції в категорії помещение под склад в Броварах.

Оголошення №4068224
  • (096) XXX‑XX‑XX
показати
Поділитися
поскаржитися на це оголошення
скасувати
Вашу скаргу успішно надіслано. Дякуємо, що повідомили про проблему. закрити повідомлення
Не можете знайти потрібну нерухомість? Залишіть заявку ріелторам Броваров Добавить заявку