Стандартне розміщення
Додати в обране
- Цена продажи
-
255 000 $
- Розташування
- Буча, Склозаводська, 10в
- Відправник
-
Григорій усі оголошення відправника - Телефони
-
- (066) XXX‑XX‑XX
- Тип пропозиції
- только продажа
- Призначення об’єкта
- магазин
- Площа
- 162.3 кв.м
Деталі пропозиції
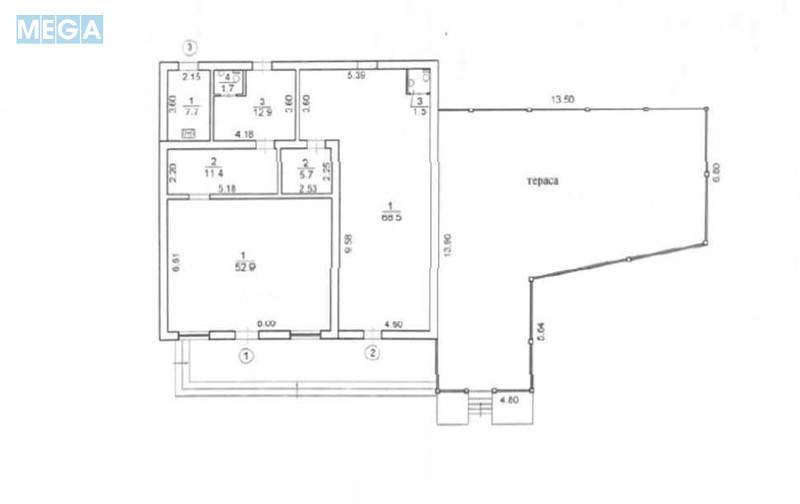
Продаж торгового приміщення
м. Буча. вул Склозаводська 10в, навпроти супермаркет ФОРА.
Загальна площа 162,3 м.кв
Земельна ділянка (у власності) - 0,0358 га
Мережеві орендарі: "Beer Market"
"Pizza Day"
Кавярня
Окупність 8,5років. + щорічна індексація 10%
Поруч ЖД станція, Аврора, Аптека, Укр Пошта, Дитячий садок. Високий трафік.
Власник Фіз. Особа. Документи готові, та в порядку.
м. Буча. вул Склозаводська 10в, навпроти супермаркет ФОРА.
Загальна площа 162,3 м.кв
Земельна ділянка (у власності) - 0,0358 га
Мережеві орендарі: "Beer Market"
"Pizza Day"
Кавярня
Окупність 8,5років. + щорічна індексація 10%
Поруч ЖД станція, Аврора, Аптека, Укр Пошта, Дитячий садок. Високий трафік.
Власник Фіз. Особа. Документи готові, та в порядку.
всі пропозиції в категорії помещение под склад в Буче.