logo

Продаж 3 кімнатної квартири (65/43/7), 5 пов. 9 пов. будинку

Стандартне розміщення Додати в обране
Цена
38 000 $
Комісія рієлтора
5
Розташування
Дніпро, Тополя 1, 7
Відправник
Телефони
  • (067) XXX‑XX‑XX
  • (063) XXX‑XX‑XX
  • (050) XXX‑XX‑XX
показать
Кімнат
3 кімнати
Площа (загальна/житлова/кухня)
65/43/7 кв. м
Поверх
5 поверх
Поверховість будинку
9 поверхів

Деталі пропозиції

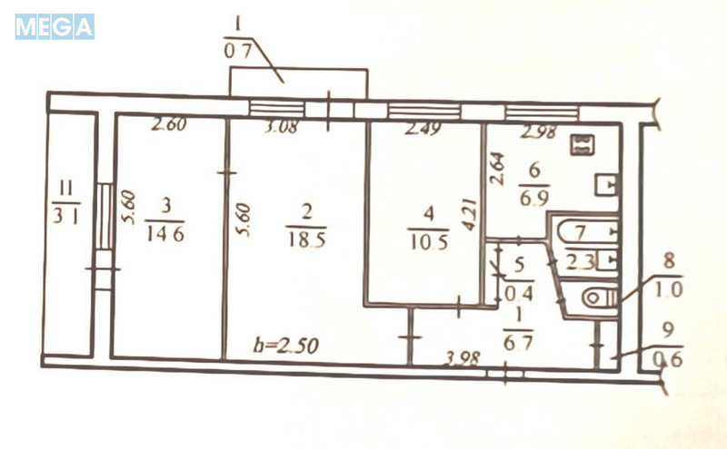
У продажу 3-на квартира на ЖМ Тополь-1. Комфотний 5й поверх з 9-ти, доглянутий будинок, новий ліфт. Квартира зі стандартною планіровкою 2+1, роздільним санвузлом, є і балкон і лоджа, вбудовані шафи для зберігання у передпокою. Вікна МПО у квартирі, лоджа засклана, а балкон залишили відкритим - не заскланим. Квартира дуже тепла, централізоване опалення працює добре (котельня поряд). Квартира у житловому стані, при продажу залишаються меблі та техніка: дівани, шафи, стінка у дітячій кімнаті, газова плита, нова керамична витяжка, холодильник, бойлер, пральна машина, кондиціонер. Дже зручне розташування будинку від зупинки транспорту Космічна повз АТБ пройти всього 2 будику, під вікнами розташовані ЦЕНТР ДИТЯЧОЇ ТА ЮНАЦЬКОЇ ТВОРЧОСТІ КРИЛА (Будинок Піонерів) та дітсадок, школа поряд за будинком. Документи готові до продажу, розглядаємо безготівкову угоду (держ програми "Е-відновлення", сетифікати). Чекаємо ваші пропозіції, дзвоніть.
Продаж 3 кімнатної квартири (65/43/7), 5 пов. 9 пов. будинку, <a class="location-link" href="/dnepropetrovsk/" title="Недвижимость Дніпра">Дніпро</a>, Тополя 1, 7 (изображение 1) Продаж 3 кімнатної квартири (65/43/7), 5 пов. 9 пов. будинку, <a class="location-link" href="/dnepropetrovsk/" title="Недвижимость Дніпра">Дніпро</a>, Тополя 1, 7 (изображение 2) Продаж 3 кімнатної квартири (65/43/7), 5 пов. 9 пов. будинку, <a class="location-link" href="/dnepropetrovsk/" title="Недвижимость Дніпра">Дніпро</a>, Тополя 1, 7 (изображение 3) Продаж 3 кімнатної квартири (65/43/7), 5 пов. 9 пов. будинку, <a class="location-link" href="/dnepropetrovsk/" title="Недвижимость Дніпра">Дніпро</a>, Тополя 1, 7 (изображение 4) Продаж 3 кімнатної квартири (65/43/7), 5 пов. 9 пов. будинку, <a class="location-link" href="/dnepropetrovsk/" title="Недвижимость Дніпра">Дніпро</a>, Тополя 1, 7 (изображение 5) Продаж 3 кімнатної квартири (65/43/7), 5 пов. 9 пов. будинку, <a class="location-link" href="/dnepropetrovsk/" title="Недвижимость Дніпра">Дніпро</a>, Тополя 1, 7 (изображение 6) Продаж 3 кімнатної квартири (65/43/7), 5 пов. 9 пов. будинку, <a class="location-link" href="/dnepropetrovsk/" title="Недвижимость Дніпра">Дніпро</a>, Тополя 1, 7 (изображение 7) Продаж 3 кімнатної квартири (65/43/7), 5 пов. 9 пов. будинку, <a class="location-link" href="/dnepropetrovsk/" title="Недвижимость Дніпра">Дніпро</a>, Тополя 1, 7 (изображение 8) Продаж 3 кімнатної квартири (65/43/7), 5 пов. 9 пов. будинку, <a class="location-link" href="/dnepropetrovsk/" title="Недвижимость Дніпра">Дніпро</a>, Тополя 1, 7 (изображение 9) Продаж 3 кімнатної квартири (65/43/7), 5 пов. 9 пов. будинку, <a class="location-link" href="/dnepropetrovsk/" title="Недвижимость Дніпра">Дніпро</a>, Тополя 1, 7 (изображение 10) Продаж 3 кімнатної квартири (65/43/7), 5 пов. 9 пов. будинку, <a class="location-link" href="/dnepropetrovsk/" title="Недвижимость Дніпра">Дніпро</a>, Тополя 1, 7 (изображение 11) Продаж 3 кімнатної квартири (65/43/7), 5 пов. 9 пов. будинку, <a class="location-link" href="/dnepropetrovsk/" title="Недвижимость Дніпра">Дніпро</a>, Тополя 1, 7 (изображение 12) Продаж 3 кімнатної квартири (65/43/7), 5 пов. 9 пов. будинку, <a class="location-link" href="/dnepropetrovsk/" title="Недвижимость Дніпра">Дніпро</a>, Тополя 1, 7 (изображение 13) Продаж 3 кімнатної квартири (65/43/7), 5 пов. 9 пов. будинку, <a class="location-link" href="/dnepropetrovsk/" title="Недвижимость Дніпра">Дніпро</a>, Тополя 1, 7 (изображение 14) Продаж 3 кімнатної квартири (65/43/7), 5 пов. 9 пов. будинку, <a class="location-link" href="/dnepropetrovsk/" title="Недвижимость Дніпра">Дніпро</a>, Тополя 1, 7 (изображение 15)
Додано/оновлено
29.04.2026

всі пропозиції в категорії 3 комнатные квартиры в Днепре (Днепропетровске).

Оголошення №4082012
  • (067) XXX‑XX‑XX
  • (063) XXX‑XX‑XX
  • (050) XXX‑XX‑XX
показати
Поділитися
поскаржитися на це оголошення
скасувати
Вашу скаргу успішно надіслано. Дякуємо, що повідомили про проблему. закрити повідомлення
Не можете знайти потрібну нерухомість? Залишіть заявку ріелторам Дніпра Добавить заявку