logo

Новобудова, 2 поверхів

Стандартне розміщення Додати в обране
Цена
1 056 $ за кв. м
Цена за объект
цена не указана
Розташування
Гатне, Святопетровського, 34
Відправник
Телефони
  • (099) XXX‑XX‑XX
показать
Поверховість будинку
2 поверха

Деталі пропозиції

Пропоную вам унікальну можливість придбати цю розкішну квартиру-таунхаус + 2 паркомісця для авто, що розташована в самому серці с. Гатне, поруч з великими ЖК що мають доступну інфраструктуру.
Завдяки своїй локації, ця квартира-таунхаус створює надзвичайну атмосферу спокою та гармонії з природою поруч з озерами та парком.

Основні переваги цієї квартири-таунхаусу включають в себе:
2 паркомісця для ваших авто.
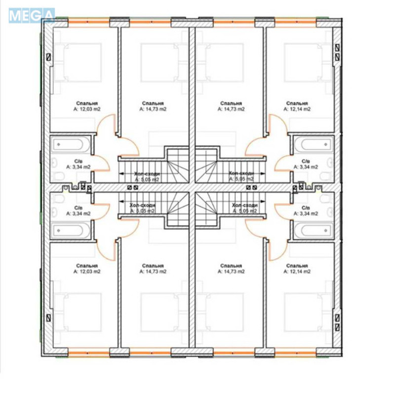
71м2 комфорту на двох поверхах.
1 поверх - передпокій та велика кухня-вітальня.
2 поверх дві кімнати та санвузол.
Закрита територія комплексу зі шлагбаумом, яка гарантує вашу безпеку та спокій.
Власне паркомісце біля будинку.
Централізована каналізація, автономне газове опалення і тепла водяна підлога, що дозволить вам насолоджуватися комфортом в будь-який сезон року.

Комплектація:
- Побудовано з червоної цегли 2NF, товщина стін - 40 см
- Додаткове утеплення фасаду 100 мм.
- Всі комунікації заведені в квартиру (світло, газ, вода, централізована каналізація ) та встановлені лічильники.
- Газ,
- Електроенергія - 3 фази 10 кВт,
- Вивіз побутового сміття,
- Дитячій майданчик на території комплексу
Сучасний ландшафт і асфальтований підїзд до комплексу та квартири-таунхаусу.
Простора кухня-вітальня - ідеальне місце для сімейних зборів та вечорів з друзями.
Кожен поверх має свій власний санвузол для зручності вас та вашої родини.

Вдала інфраструктура в радіусі 1 кілометру: зупинка громадського транспорту, супермаркети, школи, дитячі садки, лікарні та ринок.
Сусіди це гарні люди, які створюють чудове співтовариство.
Не пропустить нагоди стати щасливим власником цього унікального житла, яке запропонує вам найвищий рівень зручності та комфорту в природному оточенні.
Зателефонуйте вже сьогодні, щоб дізнатися більше та організувати огляд цього неймовірного обєкта нерухомості!
Новобудова, 2 поверхів, <a class="location-link" href="/gatnoe/" title="Недвижимость Гатне">Гатне</a>, Святопетровського, 34 (изображение 1) Новобудова, 2 поверхів, <a class="location-link" href="/gatnoe/" title="Недвижимость Гатне">Гатне</a>, Святопетровського, 34 (изображение 2) Новобудова, 2 поверхів, <a class="location-link" href="/gatnoe/" title="Недвижимость Гатне">Гатне</a>, Святопетровського, 34 (изображение 3) Новобудова, 2 поверхів, <a class="location-link" href="/gatnoe/" title="Недвижимость Гатне">Гатне</a>, Святопетровського, 34 (изображение 4) Новобудова, 2 поверхів, <a class="location-link" href="/gatnoe/" title="Недвижимость Гатне">Гатне</a>, Святопетровського, 34 (изображение 5) Новобудова, 2 поверхів, <a class="location-link" href="/gatnoe/" title="Недвижимость Гатне">Гатне</a>, Святопетровського, 34 (изображение 6) Новобудова, 2 поверхів, <a class="location-link" href="/gatnoe/" title="Недвижимость Гатне">Гатне</a>, Святопетровського, 34 (изображение 7) Новобудова, 2 поверхів, <a class="location-link" href="/gatnoe/" title="Недвижимость Гатне">Гатне</a>, Святопетровського, 34 (изображение 8) Новобудова, 2 поверхів, <a class="location-link" href="/gatnoe/" title="Недвижимость Гатне">Гатне</a>, Святопетровського, 34 (изображение 9) Новобудова, 2 поверхів, <a class="location-link" href="/gatnoe/" title="Недвижимость Гатне">Гатне</a>, Святопетровського, 34 (изображение 10) Новобудова, 2 поверхів, <a class="location-link" href="/gatnoe/" title="Недвижимость Гатне">Гатне</a>, Святопетровського, 34 (изображение 11) Новобудова, 2 поверхів, <a class="location-link" href="/gatnoe/" title="Недвижимость Гатне">Гатне</a>, Святопетровського, 34 (изображение 12) Новобудова, 2 поверхів, <a class="location-link" href="/gatnoe/" title="Недвижимость Гатне">Гатне</a>, Святопетровського, 34 (изображение 13) Новобудова, 2 поверхів, <a class="location-link" href="/gatnoe/" title="Недвижимость Гатне">Гатне</a>, Святопетровського, 34 (изображение 14) Новобудова, 2 поверхів, <a class="location-link" href="/gatnoe/" title="Недвижимость Гатне">Гатне</a>, Святопетровського, 34 (изображение 15) Новобудова, 2 поверхів, <a class="location-link" href="/gatnoe/" title="Недвижимость Гатне">Гатне</a>, Святопетровського, 34 (изображение 16) Новобудова, 2 поверхів, <a class="location-link" href="/gatnoe/" title="Недвижимость Гатне">Гатне</a>, Святопетровського, 34 (изображение 17) Новобудова, 2 поверхів, <a class="location-link" href="/gatnoe/" title="Недвижимость Гатне">Гатне</a>, Святопетровського, 34 (изображение 18) Новобудова, 2 поверхів, <a class="location-link" href="/gatnoe/" title="Недвижимость Гатне">Гатне</a>, Святопетровського, 34 (изображение 19) Новобудова, 2 поверхів, <a class="location-link" href="/gatnoe/" title="Недвижимость Гатне">Гатне</a>, Святопетровського, 34 (изображение 20)
Додано/оновлено
12.05.2026

всі пропозиції в категорії продажа новых квартир в Гатном.

Оголошення №4061009
  • (099) XXX‑XX‑XX
показати
Поділитися
поскаржитися на це оголошення
скасувати
Вашу скаргу успішно надіслано. Дякуємо, що повідомили про проблему. закрити повідомлення
Не можете знайти потрібну нерухомість? Залишіть заявку ріелторам Гатное Добавить заявку