logo

Оренда окремої будівлі/побудови, 90 кв.м

Стандартне розміщення Додати в обране
Цена аренды
25 000 грн./мес. за все
Розташування
Гатне, Святопетрівська
Відправник
Телефони
  • (099) XXX‑XX‑XX
показать
Тип пропозиції
только аренда
Тип об’єкта
окрема будівля/будівля
Площа
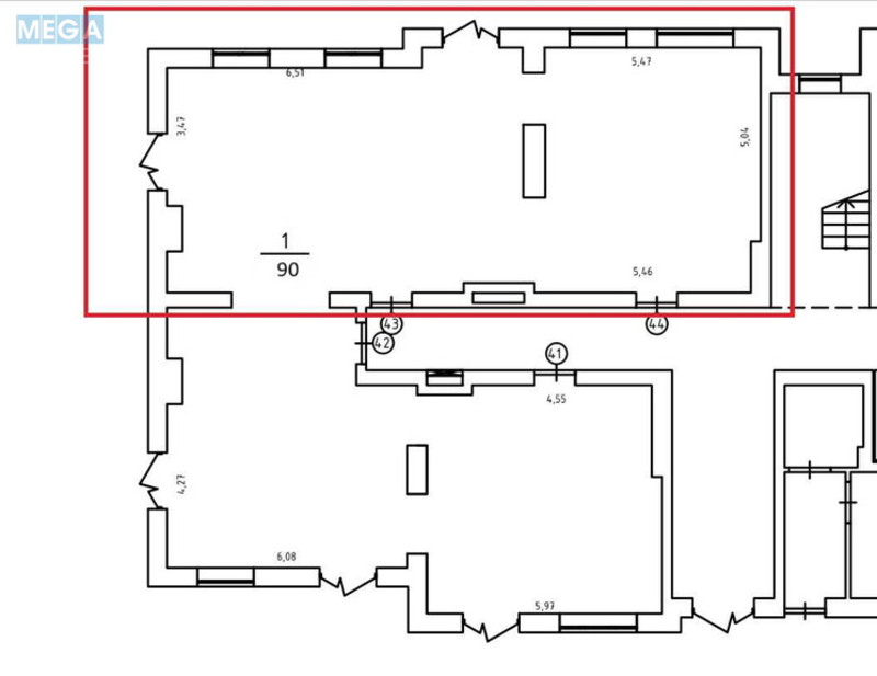
90 кв.м

Деталі пропозиції

Пропоную вашій увазі комерційне приміщення вільного призначення 90м2, в сучасному житловому комплексі Рідний-2 с. Гатне, 5 хвилин їзди від Києва. Поруч супермаркет ТРАШ/TRASH. та вхід у ЖК.

Площа комерційного приміщення становить 90 м2. Розташоване на першому поверсі зданого будинку, має окремий вхід з фасаду будівлі. Приміщення з чорновим оздобленням, встановленими вікнами. Централізована каналізація, електричне опалення + водяна тепла підлога, із черновим ремонтом, інтернет, 4 мокрі точки, введеня е/е 18 кВт (три фази).
Висота стелі 2,7м.

Комерційне приміщення відмінно підійде під офіс, аптеку, невелику кавярню, продуктовий, господарський чи продовольчий магазин, а також під освітні, дитячі чі мовні курси. На території житлового комплексу знаходиться 6 будинків, жителі яких стануть Вашими потенційними клієнтами, а також сусідній ЖК на 11 будинків.
Оренда окремої будівлі/побудови, 90&nbsp;кв.м, <a class="location-link" href="/gatnoe/" title="Недвижимость Гатне">Гатне</a>, Святопетрівська (изображение 1) Оренда окремої будівлі/побудови, 90&nbsp;кв.м, <a class="location-link" href="/gatnoe/" title="Недвижимость Гатне">Гатне</a>, Святопетрівська (изображение 2) Оренда окремої будівлі/побудови, 90&nbsp;кв.м, <a class="location-link" href="/gatnoe/" title="Недвижимость Гатне">Гатне</a>, Святопетрівська (изображение 3) Оренда окремої будівлі/побудови, 90&nbsp;кв.м, <a class="location-link" href="/gatnoe/" title="Недвижимость Гатне">Гатне</a>, Святопетрівська (изображение 4) Оренда окремої будівлі/побудови, 90&nbsp;кв.м, <a class="location-link" href="/gatnoe/" title="Недвижимость Гатне">Гатне</a>, Святопетрівська (изображение 5) Оренда окремої будівлі/побудови, 90&nbsp;кв.м, <a class="location-link" href="/gatnoe/" title="Недвижимость Гатне">Гатне</a>, Святопетрівська (изображение 6) Оренда окремої будівлі/побудови, 90&nbsp;кв.м, <a class="location-link" href="/gatnoe/" title="Недвижимость Гатне">Гатне</a>, Святопетрівська (изображение 7) Оренда окремої будівлі/побудови, 90&nbsp;кв.м, <a class="location-link" href="/gatnoe/" title="Недвижимость Гатне">Гатне</a>, Святопетрівська (изображение 8) Оренда окремої будівлі/побудови, 90&nbsp;кв.м, <a class="location-link" href="/gatnoe/" title="Недвижимость Гатне">Гатне</a>, Святопетрівська (изображение 9) Оренда окремої будівлі/побудови, 90&nbsp;кв.м, <a class="location-link" href="/gatnoe/" title="Недвижимость Гатне">Гатне</a>, Святопетрівська (изображение 10) Оренда окремої будівлі/побудови, 90&nbsp;кв.м, <a class="location-link" href="/gatnoe/" title="Недвижимость Гатне">Гатне</a>, Святопетрівська (изображение 11) Оренда окремої будівлі/побудови, 90&nbsp;кв.м, <a class="location-link" href="/gatnoe/" title="Недвижимость Гатне">Гатне</a>, Святопетрівська (изображение 12)
Додано/оновлено
28.10.2025

всі пропозиції в категорії аренда коммерческой недвижимости в Гатном.

Оголошення №4069615
  • (099) XXX‑XX‑XX
показати
Поділитися
поскаржитися на це оголошення
скасувати
Вашу скаргу успішно надіслано. Дякуємо, що повідомили про проблему. закрити повідомлення
Не можете знайти потрібну нерухомість? Залишіть заявку ріелторам Гатное Добавить заявку