Стандартне розміщення
Додати в обране
- Цена
-
150 000 $
- Розташування
- Гнідин, Щаслива, 7
- Відправник
-
Анжела усі оголошення відправника
- Телефони
-
- (097) XXX‑XX‑XX
- (050) XXX‑XX‑XX
- Поверхів
- 2
- Кімнат
- 4
- Площа будинку
- 148 кв.м
- Площа ділянки
- 6 соток
Деталі пропозиції
Сучасний котедж у центрі Гнідина, вул. Щаслива.
12 хвилин від метро Бориспільська, 5 хвилин пішки від Сільради.
Будинок для покупців, які особливу увагу приділяють якості будівництва, цінують функціональність, комфорт та мріють про свій простір.
Західноєвропейський архітектурний стиль заміського будинку.
Двоповерховий, 148 кв.м. 2023 рік побудови. Стан - під оздоблювальні роботи.
Земельна ділянка: 6,11 соток. Рівна, правильної форми. Завезений чорнозем. Можливий викуп сусідньої ділянки 5,56 соток.
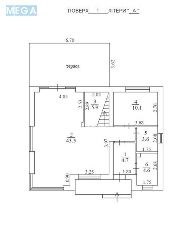
Чудово продумана архітектура та планування будинку, великі світлі кімнати: 3 спальні, кабінет, кухня-вітальня з каміном 43,5 кв., 2 санвузли, гардеробна, велика відкрита тераса 24 кв.м.
Усі будівельні та інженерні роботи прораховані та забезпечені на якісному та сучасному рівні.
Фундамент стрічковий із монолітною плитою перекриття (глибина 1,4 м, товщина плити 15 см), утеплення та гідроізоляція стіродуром, обробка бітумною гідроізоляцією.
Конструктивна схема будівлі є системою несучих колон, монолітних перекриттів і балок із заповненням стінового простору газоблоком Aeroc D500 (375 мм).
Дах: металочерепиця Ruukki, утеплення камяною ватою 200 мм, гідроізоляційна мембрана та паробарєр
Вікна: Rehau EURO 70 з теплим монтажем. Панорамні вікна першого поверху - алюмінієві конструкції вітражі з утепленням примикань, зроблені за індивідуальним замовленням, виглядають престижно і стильно.
Сходи залізобетонні зручні та безпечні.
Усі види обладнання та матеріалів придбано через офіційних дилерів в Україні.
Електрика: 3 фази, 17 кВт (тариф "день-ніч"), змонтовано щиток, встановлено автомати для першого та другого поверху, часткова розводка електрики, виведені кабелі для освітлення, розеток, зроблене вуличне освітлення.
Автономна система водопостачання свердловина глибиною 25 м.
Автономна система каналізації 2 секції з переливом.
Прокладено каналізаційні стояки та відводи стічних вод, зроблено підводи до сантехнічного обладнання, інсталяція Grohe в обох санвузлах.
На першому та другому поверсі будинку встановлені розподільні гребінки теплопостачання.
Укладено теплу підлогу по всьому першому поверсі, у спальнях другого поверху встановлені плоскі радіатори, в решті приміщень другого поверху прокладено контури системи теплої підлоги, які працюватимуть від контуру через розподільники тепла.
Встановлено камін.
Унікальність проекту даного будинку полягає в тому, що оздоблення інтерєру можна виконати в тому стилі, якому Ви віддасте перевагу.
Просторі приміщення, високі стелі, мультифункціональні зони дозволять створити будинок мрії для затишного життя.
Основні підготовчі роботи у вигляді штукатурки стін та підготовки підлоги вже виконані справа за Вами та Вашими ідеями!
Розвинена інфраструктура: поруч магазини, школа, дитячий садок, амбулаторія, Нова Пошта, кафе, зупинка громадського транспорту.
Це місце, де можна відпочити від міської суєти, насолоджуючись спокоєм та красою природи ліс і озеро в пішій доступності (10-15 хвилин пішки), 4 км до р. Дніпро.
$150000, без комісії. Архітектурний проект у подарунок.
Кваліфікована бригада будівельників, що займалася будівництвом будинку, готова завершити обробку всіх приміщень відповідно до ваших побажань.
12 хвилин від метро Бориспільська, 5 хвилин пішки від Сільради.
Будинок для покупців, які особливу увагу приділяють якості будівництва, цінують функціональність, комфорт та мріють про свій простір.
Західноєвропейський архітектурний стиль заміського будинку.
Двоповерховий, 148 кв.м. 2023 рік побудови. Стан - під оздоблювальні роботи.
Земельна ділянка: 6,11 соток. Рівна, правильної форми. Завезений чорнозем. Можливий викуп сусідньої ділянки 5,56 соток.
Чудово продумана архітектура та планування будинку, великі світлі кімнати: 3 спальні, кабінет, кухня-вітальня з каміном 43,5 кв., 2 санвузли, гардеробна, велика відкрита тераса 24 кв.м.
Усі будівельні та інженерні роботи прораховані та забезпечені на якісному та сучасному рівні.
Фундамент стрічковий із монолітною плитою перекриття (глибина 1,4 м, товщина плити 15 см), утеплення та гідроізоляція стіродуром, обробка бітумною гідроізоляцією.
Конструктивна схема будівлі є системою несучих колон, монолітних перекриттів і балок із заповненням стінового простору газоблоком Aeroc D500 (375 мм).
Дах: металочерепиця Ruukki, утеплення камяною ватою 200 мм, гідроізоляційна мембрана та паробарєр
Вікна: Rehau EURO 70 з теплим монтажем. Панорамні вікна першого поверху - алюмінієві конструкції вітражі з утепленням примикань, зроблені за індивідуальним замовленням, виглядають престижно і стильно.
Сходи залізобетонні зручні та безпечні.
Усі види обладнання та матеріалів придбано через офіційних дилерів в Україні.
Електрика: 3 фази, 17 кВт (тариф "день-ніч"), змонтовано щиток, встановлено автомати для першого та другого поверху, часткова розводка електрики, виведені кабелі для освітлення, розеток, зроблене вуличне освітлення.
Автономна система водопостачання свердловина глибиною 25 м.
Автономна система каналізації 2 секції з переливом.
Прокладено каналізаційні стояки та відводи стічних вод, зроблено підводи до сантехнічного обладнання, інсталяція Grohe в обох санвузлах.
На першому та другому поверсі будинку встановлені розподільні гребінки теплопостачання.
Укладено теплу підлогу по всьому першому поверсі, у спальнях другого поверху встановлені плоскі радіатори, в решті приміщень другого поверху прокладено контури системи теплої підлоги, які працюватимуть від контуру через розподільники тепла.
Встановлено камін.
Унікальність проекту даного будинку полягає в тому, що оздоблення інтерєру можна виконати в тому стилі, якому Ви віддасте перевагу.
Просторі приміщення, високі стелі, мультифункціональні зони дозволять створити будинок мрії для затишного життя.
Основні підготовчі роботи у вигляді штукатурки стін та підготовки підлоги вже виконані справа за Вами та Вашими ідеями!
Розвинена інфраструктура: поруч магазини, школа, дитячий садок, амбулаторія, Нова Пошта, кафе, зупинка громадського транспорту.
Це місце, де можна відпочити від міської суєти, насолоджуючись спокоєм та красою природи ліс і озеро в пішій доступності (10-15 хвилин пішки), 4 км до р. Дніпро.
$150000, без комісії. Архітектурний проект у подарунок.
Кваліфікована бригада будівельників, що займалася будівництвом будинку, готова завершити обробку всіх приміщень відповідно до ваших побажань.

























- Додано/оновлено
- 23.10.2025
всі пропозиції в категорії купить дом в Гнедине.