Стандартное размещение
Добавить в избранное
- Цена аренды
-
514 грн./мес. за все
- Расположение
- Харків, Слобідський (Комінтернівський) р-н, проспект Байрона, 23а
- Отправитель
-
АБ "УКРГАЗБАНК" все объявления отправителя
- Телефоны
-
- (044) XXX‑XX‑XX
- Тип пропозиції
- только аренда
- Призначення об’єкта
- офіс
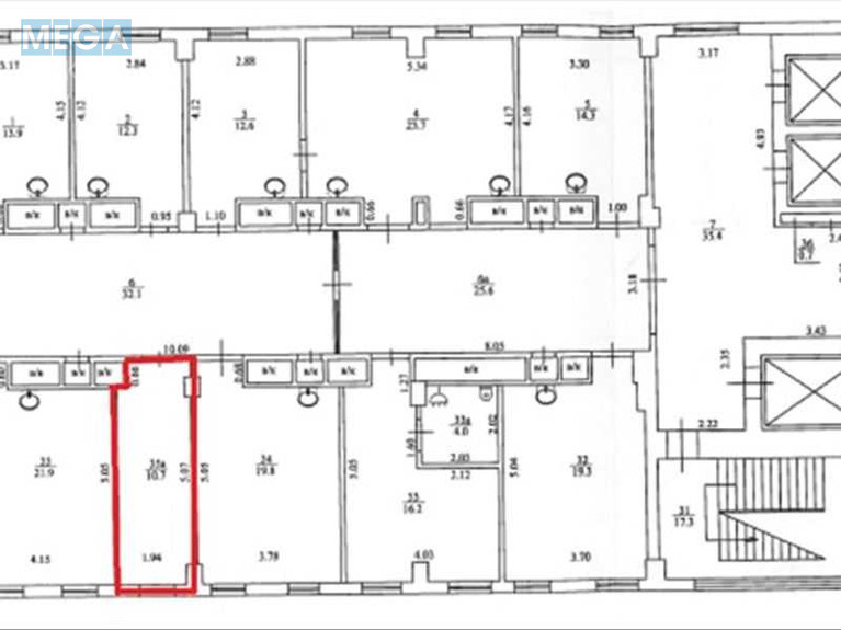
- Площа
- 10.7 кв.м
Подробности предложения
as995909. АБ УКРГАЗБАНК оголошує про передачу нерухомого майна в оренду на аукціоні, а саме щодо укладання договору оренди (тимчасового платного користування) нежитлового приміщення №35а, загальною площею 10,7 кв.м, що знаходяться на сьомому поверсі нежитлової будівлі літ. А-8 за адресою м. Харків, проспект Байрона (стара назва - проспект Героїв Сталінграда) буд. 23-А, відповідно до Схеми меж оренди.
Стартова орендна плата, грн./міс - 514,24 грн. (п’ятсот чотирнадцять грн 24 коп.), з ПДВ
Детальніше з умовами укладання договору оренди можна ознайомитись за посиланням:
Стартова орендна плата, грн./міс - 514,24 грн. (п’ятсот чотирнадцять грн 24 коп.), з ПДВ
Детальніше з умовами укладання договору оренди можна ознайомитись за посиланням:




- Добавлено/обновлено
- 21.10.2025
См. все предложения в категории аренда коммерческой недвижимости в Харькове.