logo

Оренда окремої будівлі/побудови, 99,40 кв.м

Стандартне розміщення Додати в обране
Цена аренды
7 443 грн./мес. за все
Розташування
Харків, Шевченківський (Дзержинський) р-н, Шатилова дача, 4
Відправник
Телефони
  • (044) XXX‑XX‑XX
показать
Тип пропозиції
только аренда
Тип об’єкта
окрема будівля/будівля
Площа
99.4 кв.м

Деталі пропозиції

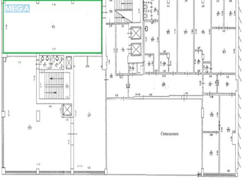
as1006159. АБ УКРГАЗБАНК оголошує про передачу нерухомого майна в оренду на аукціоні, а саме щодо укладання договору оренди (тимчасового платного користування) нежитлового приміщення №1 (актова зала), загальною площею 99,4 кв.м, що знаходяться на першому поверсі нежитлової будівлі літ. А-8, за адресою: м. Харків, вул. Шатилова дача, 4, відповідно до Схеми меж оренди.
Стартова орендна плата, грн./міс - 7 443,07 грн., з ПДВ
Детальніше з умовами укладання договору оренди можна ознайомитись за посиланням:
Оренда окремої будівлі/побудови, 99,40&nbsp;кв.м, <a class="location-link" href="/kharkov/" title="Недвижимость Харків">Харків</a>, <a class="location-link" href="/kharkov/dzerzhinskij/" title="Недвижимость Шевченківський (Дзержинський) район">Шевченківський (Дзержинський) р-н</a>, Шатилова дача, 4 (изображение 1) Оренда окремої будівлі/побудови, 99,40&nbsp;кв.м, <a class="location-link" href="/kharkov/" title="Недвижимость Харків">Харків</a>, <a class="location-link" href="/kharkov/dzerzhinskij/" title="Недвижимость Шевченківський (Дзержинський) район">Шевченківський (Дзержинський) р-н</a>, Шатилова дача, 4 (изображение 2) Оренда окремої будівлі/побудови, 99,40&nbsp;кв.м, <a class="location-link" href="/kharkov/" title="Недвижимость Харків">Харків</a>, <a class="location-link" href="/kharkov/dzerzhinskij/" title="Недвижимость Шевченківський (Дзержинський) район">Шевченківський (Дзержинський) р-н</a>, Шатилова дача, 4 (изображение 3)
Додано/оновлено
18.10.2025

всі пропозиції в категорії аренда коммерческой недвижимости в Харькове.

Оголошення №4078715
  • (044) XXX‑XX‑XX
показати
Поділитися
поскаржитися на це оголошення
скасувати
Вашу скаргу успішно надіслано. Дякуємо, що повідомили про проблему. закрити повідомлення
Не можете знайти потрібну нерухомість? Залишіть заявку ріелторам Харькова Добавить заявку