logo

Оренда окремої будівлі/побудови, 20,50 кв.м

Стандартне розміщення Додати в обране
Цена аренды
1 564 грн./мес. за все
Розташування
Харків, Шевченківський (Дзержинський) р-н, Шатилова дача, 4
Відправник
Телефони
  • (044) XXX‑XX‑XX
показать
Тип пропозиції
только аренда
Тип об’єкта
окрема будівля/будівля
Площа
20.5 кв.м

Деталі пропозиції

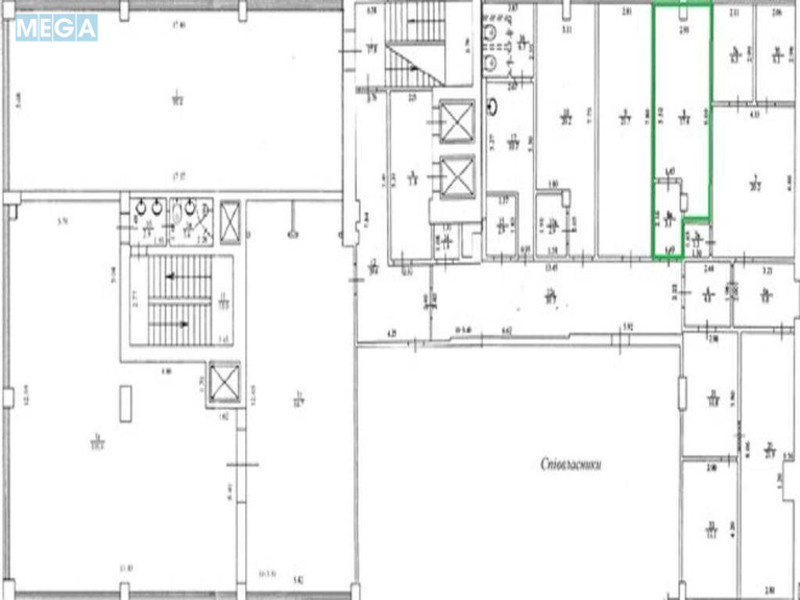
as1006166. АБ УКРГАЗБАНК оголошує про передачу нерухомого майна в оренду на аукціоні, а саме щодо укладання договору оренди (тимчасового платного користування) нежитлового приміщення №8 (кабінет), №8а (коридор), загальною площею 20,5 кв.м, що знаходяться на першому поверсі нежитлової будівлі літ. А-8, за адресою: м. Харків, вул. Шатилова дача, 4, відповідно до Схеми меж оренди.
Стартова орендна плата, грн./міс - 1 564,56 грн., з ПДВ
Детальніше з умовами укладання договору оренди можна ознайомитись за посиланням:
Оренда окремої будівлі/побудови, 20,50&nbsp;кв.м, <a class="location-link" href="/kharkov/" title="Недвижимость Харків">Харків</a>, <a class="location-link" href="/kharkov/dzerzhinskij/" title="Недвижимость Шевченківський (Дзержинський) район">Шевченківський (Дзержинський) р-н</a>, Шатилова дача, 4 (изображение 1) Оренда окремої будівлі/побудови, 20,50&nbsp;кв.м, <a class="location-link" href="/kharkov/" title="Недвижимость Харків">Харків</a>, <a class="location-link" href="/kharkov/dzerzhinskij/" title="Недвижимость Шевченківський (Дзержинський) район">Шевченківський (Дзержинський) р-н</a>, Шатилова дача, 4 (изображение 2) Оренда окремої будівлі/побудови, 20,50&nbsp;кв.м, <a class="location-link" href="/kharkov/" title="Недвижимость Харків">Харків</a>, <a class="location-link" href="/kharkov/dzerzhinskij/" title="Недвижимость Шевченківський (Дзержинський) район">Шевченківський (Дзержинський) р-н</a>, Шатилова дача, 4 (изображение 3)
Додано/оновлено
18.10.2025

Дивіться також

1 656 грн./мес. за все

Харків, Шевченківський (Дзержинський) р-н, Шатилова дача, 4

1 671 грн./мес. за все

Харків, Шевченківський (Дзержинський) р-н, Шатилова дача, 4

1 566 грн./мес. за все

Харків, Шевченківський (Дзержинський) р-н, Шатилова дача, 4

всі пропозиції в категорії аренда коммерческой недвижимости в Харькове.

Оголошення №4078719
  • (044) XXX‑XX‑XX
показати
Поділитися
поскаржитися на це оголошення
скасувати
Вашу скаргу успішно надіслано. Дякуємо, що повідомили про проблему. закрити повідомлення
Не можете знайти потрібну нерухомість? Залишіть заявку ріелторам Харків Добавить заявку