Стандартне розміщення
Додати в обране
- Цена аренды
-
1 566 грн./мес. за все
- Розташування
- Харків, Шевченківський (Дзержинський) р-н, Шатилова дача, 4
- Відправник
-
АБ "УКРГАЗБАНК" усі оголошення відправника
- Телефони
-
- (044) XXX‑XX‑XX
- Тип пропозиції
- только аренда
- Тип об’єкта
- окрема будівля/будівля
- Площа
- 39.4 кв.м
Деталі пропозиції
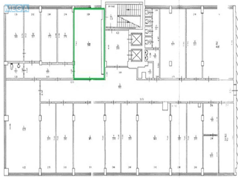
as1006178. АБ УКРГАЗБАНК оголошує про передачу нерухомого майна в оренду на аукціоні, а саме щодо укладання договору оренди (тимчасового платного користування) нежитлового приміщення №1 (кабінет), загальною площею 39,4 кв.м, що знаходяться на другому поверсі нежитлової будівлі літ. А-8, за адресою: м. Харків, вул. Шатилова дача, 4, відповідно до Схеми меж оренди.
Стартова орендна плата, грн./міс - 1 566,15 грн., з ПДВ
Детальніше з умовами укладання договору оренди можна ознайомитись за посиланням:
Стартова орендна плата, грн./міс - 1 566,15 грн., з ПДВ
Детальніше з умовами укладання договору оренди можна ознайомитись за посиланням:



- Додано/оновлено
- 18.10.2025
Дивіться також
всі пропозиції в категорії аренда офиса в Харькове.