Стандартне розміщення
Додати в обране
- Цена
-
1 125 $ за кв. м
- Цена за объект
-
цена не указана
- Розташування
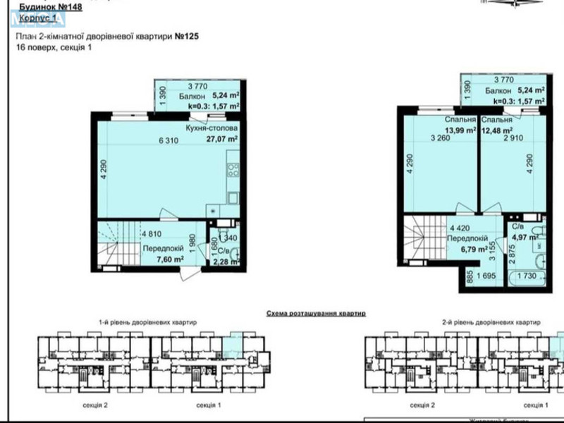
- Київ, Голосіївський р-н, Метрологическая ул., 148
- Відправник
-
Светлана усі оголошення відправника - Телефони
-
- (095) XXX‑XX‑XX
- (063) XXX‑XX‑XX
- Поверховість будинку
- 17 поверхів
Деталі пропозиції
Без комис. Видовая.
Продам 3х к квартиру ( двухуровневая)
в ЖК "Кришлеві Джерела" в Голосеевском р-не по ул. Метрологическая 148 В.
Общая площадь 80 кв.м, жилая площадь 27 кв.м, кухня 28 кв.м. Расположена на 15-16-м этаже 16 этажного дома в 1-й секции, вид на парк Феофания и собор. Есть балкон, который по проекту станет прекрасной лаунж-зоной, с которой вы будете любоваться панорамным видом. Пешая близость к метро Теремки или Ипподром, ТРЦ Республика и Магеллан. В ЖК развитая инфраструктура: кафе, фитнес-центр, Новус и все что нужно чтобы в целом не выезжать за пределы комплекса. Закрытая охраняемая территория дома, есть детские площадки, озеленение. Рядом Парк "Феофания", через дорогу ВДНХ, Пирогово, Голосеевский парк. Идеальное расположение с вариантами досуга на любой вкус. Квартира сдается без отделки. Счетчики. Дом сдан. Дркументы. Заселяются . Цена 90000 у е оформлення еа покупця
Продам 3х к квартиру ( двухуровневая)
в ЖК "Кришлеві Джерела" в Голосеевском р-не по ул. Метрологическая 148 В.
Общая площадь 80 кв.м, жилая площадь 27 кв.м, кухня 28 кв.м. Расположена на 15-16-м этаже 16 этажного дома в 1-й секции, вид на парк Феофания и собор. Есть балкон, который по проекту станет прекрасной лаунж-зоной, с которой вы будете любоваться панорамным видом. Пешая близость к метро Теремки или Ипподром, ТРЦ Республика и Магеллан. В ЖК развитая инфраструктура: кафе, фитнес-центр, Новус и все что нужно чтобы в целом не выезжать за пределы комплекса. Закрытая охраняемая территория дома, есть детские площадки, озеленение. Рядом Парк "Феофания", через дорогу ВДНХ, Пирогово, Голосеевский парк. Идеальное расположение с вариантами досуга на любой вкус. Квартира сдается без отделки. Счетчики. Дом сдан. Дркументы. Заселяются . Цена 90000 у е оформлення еа покупця
всі пропозиції в категорії купить новострой в Киеве.