Премиум размещение
Добавить в избранное
- Цена аренды
-
12 $/мес. за кв. м
- Расположение
- Київ, Шевченківський р-н, Провіантська вул., 3
- Отправитель
-
Тетяна все объявления отправителя - Телефоны
-
- (063) XXX‑XX‑XX
- Тип пропозиції
- только аренда
- Призначення об’єкта
- офіс
- Площа
- 190 кв.м
Подробности предложения
Оренда офісу площею 190 м2. 5 кабінетів, міні-кухня, серверна, 2 с/в. До метро Політехнічний Інститут (КПІ) 550 метрів (7 хвилин пішки). Телефонія, швидкісний інтернет, кондиціювання. Приміщення з окремим входом в житлово-офісному комплексі, є цілодобова охорона. Нежитловий фонд. Без комісії. Від власника.
Адреса: вул. Провіантська (колишня Галі Тимофєєвої), 3. Шевченківський район. Метро Політехнічний Інститут.
Вартість: 2280 дол. (12 дол./м2)
Експлуатаційні: 4000 грн./міс.
Комунальні за лічильником.
Без комісії.
Розвинута інфраструктура. В радіусі 250 метрів знаходяться: поштові відділення, банки, торговий центр Smart Plaza, кінотеатр, супермаркети, магазини, фастфуди, ресторани і кафе.
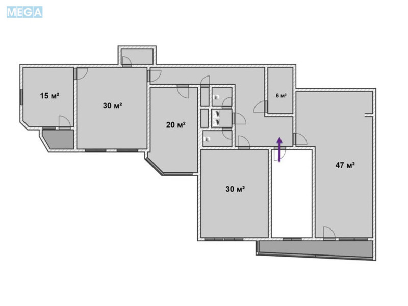
Приміщення включає в себе:
- Кабінет 15 м2
- Кабінет 30 м2
- Кабінет 20 м2
- Кабінет 30 м2
- Кабінет 47 м2
- Міні-кухня з холодильником і мікрохвильовкою
- Підсобне приміщення з можливістю підключення посудомийної машини і технічним краном
- Серверна
- 2 туалети
- 2 балкона
У кабінетах виведено багато розеток живлення, а також мережевих і телефонних розеток для гнучкої розстановки робочих місць і обладнання. Встановлена міні-АТС.
Охорона на вході в будівлю. У приміщенні встановлена сигналізація.
Офіційний договір оренди, безготівковий розрахунок.
Адреса: вул. Провіантська (колишня Галі Тимофєєвої), 3. Шевченківський район. Метро Політехнічний Інститут.
Вартість: 2280 дол. (12 дол./м2)
Експлуатаційні: 4000 грн./міс.
Комунальні за лічильником.
Без комісії.
Розвинута інфраструктура. В радіусі 250 метрів знаходяться: поштові відділення, банки, торговий центр Smart Plaza, кінотеатр, супермаркети, магазини, фастфуди, ресторани і кафе.
Приміщення включає в себе:
- Кабінет 15 м2
- Кабінет 30 м2
- Кабінет 20 м2
- Кабінет 30 м2
- Кабінет 47 м2
- Міні-кухня з холодильником і мікрохвильовкою
- Підсобне приміщення з можливістю підключення посудомийної машини і технічним краном
- Серверна
- 2 туалети
- 2 балкона
У кабінетах виведено багато розеток живлення, а також мережевих і телефонних розеток для гнучкої розстановки робочих місць і обладнання. Встановлена міні-АТС.
Охорона на вході в будівлю. У приміщенні встановлена сигналізація.
Офіційний договір оренди, безготівковий розрахунок.
Дивіться також
См. все предложения в категории аренда склада в Киеве.