logo

Оренда комерційної нерухомості, 398 кв.м, под офис

Стандартне розміщення Додати в обране
Цена аренды
5 685 $/мес. за все
Розташування
Київ, Дніпровський р-н, Евгения Сверстюка ул., 2А
Відправник
Телефони
  • (067) XXX‑XX‑XX
показать
Тип пропозиції
только аренда
Призначення об’єкта
офіс
Площа
398 кв.м

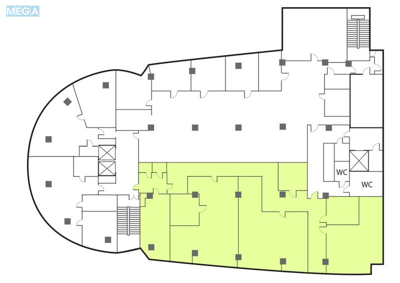
Деталі пропозиції

Оренда офісу метро Лівобережна 395 кв.м.
Бізнес-центр Лівобережний
Дніпровський район, вул. Євгена Сверстюка,2А
Площа 395,00 кв.м.
4-й поверх

Найкраще офісне приміщення на Лівому березі!
Новий сучасний ремонт. Є вентиляція, кондиціонування, відеоспостереження, цілодобова охорона, СКС.

Планування:
- кабінетне та open space
- санвузол
- кухня
Приміщення здається без меблів

Встановлений генератор, на всю будівлю.
Оптоволоконний високошвидкісний інтернет.
Підземний паркінг працює, як укриття.
Є можливість додатково орендувати необхідну кількість паркомісць.

Метро Лівобережна 5 метрів пішки.
Вся інфраструктура в 5-ти хвилинній доступності.

Оплата по безготівковому рахунку. Компанія платник єдиного податку.
Орендна ставка 11 доларів США/м2
ОРЕХ 4 долари США/м2
Комунальні послуги за показниками лічильників
Оренда комерційної нерухомості, 398&nbsp;кв.м, под офис, <a class="location-link" href="/kiev/" title="Недвижимость Київ">Київ</a>, <a class="location-link" href="/kiev/dneprovskij/" title="Недвижимость Дніпровський район">Дніпровський р-н</a>, Евгения Сверстюка ул., 2А (изображение 1) Оренда комерційної нерухомості, 398&nbsp;кв.м, под офис, <a class="location-link" href="/kiev/" title="Недвижимость Київ">Київ</a>, <a class="location-link" href="/kiev/dneprovskij/" title="Недвижимость Дніпровський район">Дніпровський р-н</a>, Евгения Сверстюка ул., 2А (изображение 2) Оренда комерційної нерухомості, 398&nbsp;кв.м, под офис, <a class="location-link" href="/kiev/" title="Недвижимость Київ">Київ</a>, <a class="location-link" href="/kiev/dneprovskij/" title="Недвижимость Дніпровський район">Дніпровський р-н</a>, Евгения Сверстюка ул., 2А (изображение 3) Оренда комерційної нерухомості, 398&nbsp;кв.м, под офис, <a class="location-link" href="/kiev/" title="Недвижимость Київ">Київ</a>, <a class="location-link" href="/kiev/dneprovskij/" title="Недвижимость Дніпровський район">Дніпровський р-н</a>, Евгения Сверстюка ул., 2А (изображение 4) Оренда комерційної нерухомості, 398&nbsp;кв.м, под офис, <a class="location-link" href="/kiev/" title="Недвижимость Київ">Київ</a>, <a class="location-link" href="/kiev/dneprovskij/" title="Недвижимость Дніпровський район">Дніпровський р-н</a>, Евгения Сверстюка ул., 2А (изображение 5) Оренда комерційної нерухомості, 398&nbsp;кв.м, под офис, <a class="location-link" href="/kiev/" title="Недвижимость Київ">Київ</a>, <a class="location-link" href="/kiev/dneprovskij/" title="Недвижимость Дніпровський район">Дніпровський р-н</a>, Евгения Сверстюка ул., 2А (изображение 6) Оренда комерційної нерухомості, 398&nbsp;кв.м, под офис, <a class="location-link" href="/kiev/" title="Недвижимость Київ">Київ</a>, <a class="location-link" href="/kiev/dneprovskij/" title="Недвижимость Дніпровський район">Дніпровський р-н</a>, Евгения Сверстюка ул., 2А (изображение 7) Оренда комерційної нерухомості, 398&nbsp;кв.м, под офис, <a class="location-link" href="/kiev/" title="Недвижимость Київ">Київ</a>, <a class="location-link" href="/kiev/dneprovskij/" title="Недвижимость Дніпровський район">Дніпровський р-н</a>, Евгения Сверстюка ул., 2А (изображение 8) Оренда комерційної нерухомості, 398&nbsp;кв.м, под офис, <a class="location-link" href="/kiev/" title="Недвижимость Київ">Київ</a>, <a class="location-link" href="/kiev/dneprovskij/" title="Недвижимость Дніпровський район">Дніпровський р-н</a>, Евгения Сверстюка ул., 2А (изображение 9) Оренда комерційної нерухомості, 398&nbsp;кв.м, под офис, <a class="location-link" href="/kiev/" title="Недвижимость Київ">Київ</a>, <a class="location-link" href="/kiev/dneprovskij/" title="Недвижимость Дніпровський район">Дніпровський р-н</a>, Евгения Сверстюка ул., 2А (изображение 10) Оренда комерційної нерухомості, 398&nbsp;кв.м, под офис, <a class="location-link" href="/kiev/" title="Недвижимость Київ">Київ</a>, <a class="location-link" href="/kiev/dneprovskij/" title="Недвижимость Дніпровський район">Дніпровський р-н</a>, Евгения Сверстюка ул., 2А (изображение 11) Оренда комерційної нерухомості, 398&nbsp;кв.м, под офис, <a class="location-link" href="/kiev/" title="Недвижимость Київ">Київ</a>, <a class="location-link" href="/kiev/dneprovskij/" title="Недвижимость Дніпровський район">Дніпровський р-н</a>, Евгения Сверстюка ул., 2А (изображение 12)
Додано/оновлено
28.10.2025

Дивіться також

3 000 грн./мес. за все

Київ, Дніпровський р-н, Евгения Сверстюка ул., 11б

всі пропозиції в категорії снять офис в Киеве.

Оголошення №4079076
  • (067) XXX‑XX‑XX
показати
Поділитися
поскаржитися на це оголошення
скасувати
Вашу скаргу успішно надіслано. Дякуємо, що повідомили про проблему. закрити повідомлення
Не можете знайти потрібну нерухомість? Залишіть заявку ріелторам Київ Добавить заявку