logo

Продаж комерційної нерухомості, 126 кв.м, под офис

Стандартне розміщення Додати в обране
Цена продажи
252 000 $
Розташування
Київ, Голосіївський р-н, Жилянская ул., 59
Відправник
Телефони
  • (099) XXX‑XX‑XX
показать
Тип пропозиції
только продажа
Призначення об’єкта
офіс
Площа
126 кв.м

Деталі пропозиції

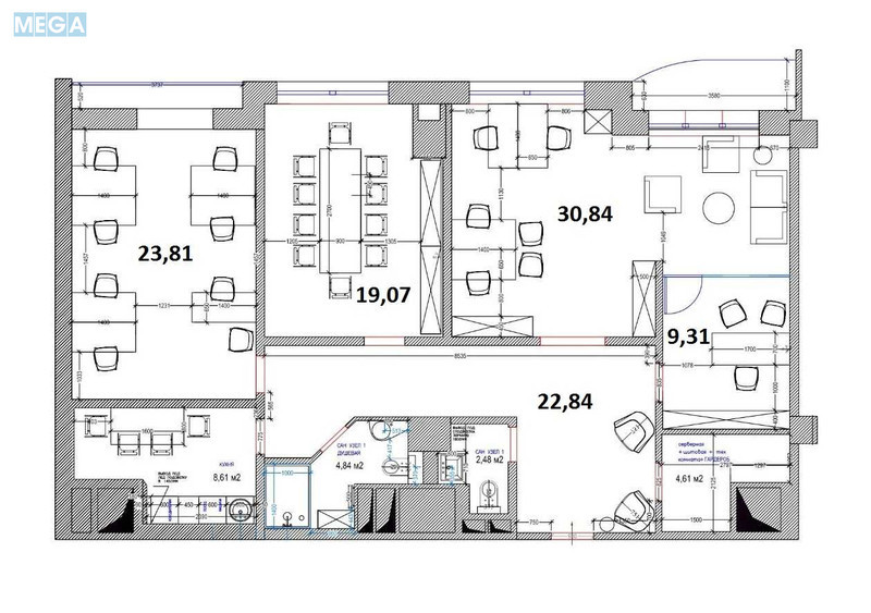
Продажа офиса 126,4 м2. Ул. Жилянская,59. ЖК Дипломат Холл Голосеевский район.
3 этаж из 15. НЕЖИЛОЙ ФОНД.
Офис включает 3 кабинета: рабочее пространство 40 кв. м.(можно разделить на 30,84 и 9,31), и кабинеты 23,81 (директорский); 19,07 кв. м. (переговорная), кухню 8,61 кв. м., два санузла, один из которых с душевой., Два балкона, гардеробная-серверная при входе.
В помещениях на полу ламинат, на стенах обои под покраску.
В кабинетах установлено качественное LED освещение, система климат контроля и вентиляции. Рулонные шторы на окнах. Входная бронированная дверь. Установлены счётчики на тепло, воду, свет.
Хороший новый ремонт.
Входов в офис 3, лифтов 6. в том числе вход через презентабельное лобби дома. Лифты опускаются в паркинг.
Цена: 252 000у.е. Представитель собственника, без комиссии для покупателя. Александр.
Продаж комерційної нерухомості, 126&nbsp;кв.м, под офис, <a class="location-link" href="/kiev/" title="Недвижимость Київ">Київ</a>, <a class="location-link" href="/kiev/goloseevskij/" title="Недвижимость Голосіївський район">Голосіївський р-н</a>, Жилянская ул., 59 (изображение 1) Продаж комерційної нерухомості, 126&nbsp;кв.м, под офис, <a class="location-link" href="/kiev/" title="Недвижимость Київ">Київ</a>, <a class="location-link" href="/kiev/goloseevskij/" title="Недвижимость Голосіївський район">Голосіївський р-н</a>, Жилянская ул., 59 (изображение 2) Продаж комерційної нерухомості, 126&nbsp;кв.м, под офис, <a class="location-link" href="/kiev/" title="Недвижимость Київ">Київ</a>, <a class="location-link" href="/kiev/goloseevskij/" title="Недвижимость Голосіївський район">Голосіївський р-н</a>, Жилянская ул., 59 (изображение 3) Продаж комерційної нерухомості, 126&nbsp;кв.м, под офис, <a class="location-link" href="/kiev/" title="Недвижимость Київ">Київ</a>, <a class="location-link" href="/kiev/goloseevskij/" title="Недвижимость Голосіївський район">Голосіївський р-н</a>, Жилянская ул., 59 (изображение 4) Продаж комерційної нерухомості, 126&nbsp;кв.м, под офис, <a class="location-link" href="/kiev/" title="Недвижимость Київ">Київ</a>, <a class="location-link" href="/kiev/goloseevskij/" title="Недвижимость Голосіївський район">Голосіївський р-н</a>, Жилянская ул., 59 (изображение 5) Продаж комерційної нерухомості, 126&nbsp;кв.м, под офис, <a class="location-link" href="/kiev/" title="Недвижимость Київ">Київ</a>, <a class="location-link" href="/kiev/goloseevskij/" title="Недвижимость Голосіївський район">Голосіївський р-н</a>, Жилянская ул., 59 (изображение 6) Продаж комерційної нерухомості, 126&nbsp;кв.м, под офис, <a class="location-link" href="/kiev/" title="Недвижимость Київ">Київ</a>, <a class="location-link" href="/kiev/goloseevskij/" title="Недвижимость Голосіївський район">Голосіївський р-н</a>, Жилянская ул., 59 (изображение 7) Продаж комерційної нерухомості, 126&nbsp;кв.м, под офис, <a class="location-link" href="/kiev/" title="Недвижимость Київ">Київ</a>, <a class="location-link" href="/kiev/goloseevskij/" title="Недвижимость Голосіївський район">Голосіївський р-н</a>, Жилянская ул., 59 (изображение 8) Продаж комерційної нерухомості, 126&nbsp;кв.м, под офис, <a class="location-link" href="/kiev/" title="Недвижимость Київ">Київ</a>, <a class="location-link" href="/kiev/goloseevskij/" title="Недвижимость Голосіївський район">Голосіївський р-н</a>, Жилянская ул., 59 (изображение 9) Продаж комерційної нерухомості, 126&nbsp;кв.м, под офис, <a class="location-link" href="/kiev/" title="Недвижимость Київ">Київ</a>, <a class="location-link" href="/kiev/goloseevskij/" title="Недвижимость Голосіївський район">Голосіївський р-н</a>, Жилянская ул., 59 (изображение 10) Продаж комерційної нерухомості, 126&nbsp;кв.м, под офис, <a class="location-link" href="/kiev/" title="Недвижимость Київ">Київ</a>, <a class="location-link" href="/kiev/goloseevskij/" title="Недвижимость Голосіївський район">Голосіївський р-н</a>, Жилянская ул., 59 (изображение 11) Продаж комерційної нерухомості, 126&nbsp;кв.м, под офис, <a class="location-link" href="/kiev/" title="Недвижимость Київ">Київ</a>, <a class="location-link" href="/kiev/goloseevskij/" title="Недвижимость Голосіївський район">Голосіївський р-н</a>, Жилянская ул., 59 (изображение 12) Продаж комерційної нерухомості, 126&nbsp;кв.м, под офис, <a class="location-link" href="/kiev/" title="Недвижимость Київ">Київ</a>, <a class="location-link" href="/kiev/goloseevskij/" title="Недвижимость Голосіївський район">Голосіївський р-н</a>, Жилянская ул., 59 (изображение 13) Продаж комерційної нерухомості, 126&nbsp;кв.м, под офис, <a class="location-link" href="/kiev/" title="Недвижимость Київ">Київ</a>, <a class="location-link" href="/kiev/goloseevskij/" title="Недвижимость Голосіївський район">Голосіївський р-н</a>, Жилянская ул., 59 (изображение 14) Продаж комерційної нерухомості, 126&nbsp;кв.м, под офис, <a class="location-link" href="/kiev/" title="Недвижимость Київ">Київ</a>, <a class="location-link" href="/kiev/goloseevskij/" title="Недвижимость Голосіївський район">Голосіївський р-н</a>, Жилянская ул., 59 (изображение 15) Продаж комерційної нерухомості, 126&nbsp;кв.м, под офис, <a class="location-link" href="/kiev/" title="Недвижимость Київ">Київ</a>, <a class="location-link" href="/kiev/goloseevskij/" title="Недвижимость Голосіївський район">Голосіївський р-н</a>, Жилянская ул., 59 (изображение 16) Продаж комерційної нерухомості, 126&nbsp;кв.м, под офис, <a class="location-link" href="/kiev/" title="Недвижимость Київ">Київ</a>, <a class="location-link" href="/kiev/goloseevskij/" title="Недвижимость Голосіївський район">Голосіївський р-н</a>, Жилянская ул., 59 (изображение 17) Продаж комерційної нерухомості, 126&nbsp;кв.м, под офис, <a class="location-link" href="/kiev/" title="Недвижимость Київ">Київ</a>, <a class="location-link" href="/kiev/goloseevskij/" title="Недвижимость Голосіївський район">Голосіївський р-н</a>, Жилянская ул., 59 (изображение 18)
Додано/оновлено
24.04.2026

Дивіться також

127 200 $

Київ, Голосіївський р-н, Феодосийский пер., 14

157 200 $

Київ, Голосіївський р-н, Феодосийский пер., 14

230 000 $

Київ, Голосіївський р-н, Костанайская ул., 13

всі пропозиції в категорії продажа офисов в Киеве.

Оголошення №4080729
  • (099) XXX‑XX‑XX
показати
Поділитися
поскаржитися на це оголошення
скасувати
Вашу скаргу успішно надіслано. Дякуємо, що повідомили про проблему. закрити повідомлення
Не можете знайти потрібну нерухомість? Залишіть заявку ріелторам Київ Добавить заявку