logo

Продаж комерційної нерухомості, 182 кв.м, под офис

Стандартне розміщення Додати в обране
Цена продажи
200 200 $
Розташування
Київ, Дарницький р-н, Александра Мишуги ул., 10
Відправник
Телефони
  • (096) XXX‑XX‑XX
показать
Тип пропозиції
только продажа
Призначення об’єкта
офіс
Площа
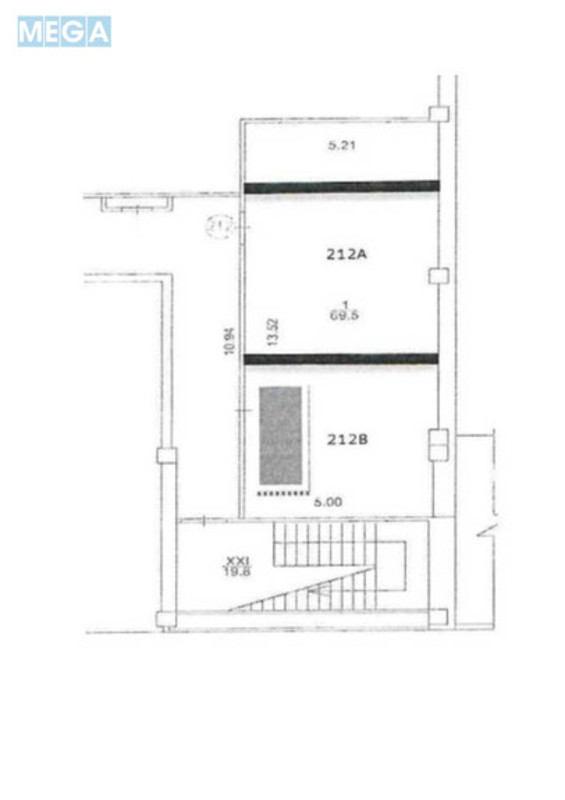
182 кв.м

Деталі пропозиції

ПРОДАМ своє нежитлове приміщення загал. площею = 182 m2.. Приміщення розташоване на 2-му поверсі Бізнес центра Паралель. Вхід загальний чарез охоронця спостерегача.
БЦ має свій потужний генератор ! Завжди є світло, тепло, вода гаряча та холодна !
БЦ розташований на території заселеного ЖК, з високою щільністю населення. Ст.м .Позняки 70 м. Поруч офіси, банки, термінали банкомати, супермаркети, поштові відділення. Кав’ярні та інші заклади громадського харчування. Приміщення належить до комерційної нерухомості. На даний час приміщення винаймають орендарі. Фітнес клуб. Приміщення розділено на декілька кімнат: велика спортивна зала, масажний кабінет, душові, туалет, роздягальні. Кондиціювання, Відеоспостереження, Пожежна сигналізація, Серверна кімната, кабельна мережа інтернету. Світле та просторе приміщення, з дорогим, якісним ремонтом. Висота стелі 2.8 m. БЦ збудован та здан в експлуатацію у 2016р. Санвузли на поверсі М / Ж.
Вартість 1100 $ / m2. Загальна вартість = 200.200 $.
Запрошую до співпраці сертифікованих ріелторів, комісійна виногорода 3 %
Власник юридична особа. Контактний тел.:0
Продаж комерційної нерухомості, 182&nbsp;кв.м, под офис, <a class="location-link" href="/kiev/" title="Недвижимость Київ">Київ</a>, <a class="location-link" href="/kiev/darnickij/" title="Недвижимость Дарницький район">Дарницький р-н</a>, Александра Мишуги ул., 10 (изображение 1) Продаж комерційної нерухомості, 182&nbsp;кв.м, под офис, <a class="location-link" href="/kiev/" title="Недвижимость Київ">Київ</a>, <a class="location-link" href="/kiev/darnickij/" title="Недвижимость Дарницький район">Дарницький р-н</a>, Александра Мишуги ул., 10 (изображение 2) Продаж комерційної нерухомості, 182&nbsp;кв.м, под офис, <a class="location-link" href="/kiev/" title="Недвижимость Київ">Київ</a>, <a class="location-link" href="/kiev/darnickij/" title="Недвижимость Дарницький район">Дарницький р-н</a>, Александра Мишуги ул., 10 (изображение 3) Продаж комерційної нерухомості, 182&nbsp;кв.м, под офис, <a class="location-link" href="/kiev/" title="Недвижимость Київ">Київ</a>, <a class="location-link" href="/kiev/darnickij/" title="Недвижимость Дарницький район">Дарницький р-н</a>, Александра Мишуги ул., 10 (изображение 4) Продаж комерційної нерухомості, 182&nbsp;кв.м, под офис, <a class="location-link" href="/kiev/" title="Недвижимость Київ">Київ</a>, <a class="location-link" href="/kiev/darnickij/" title="Недвижимость Дарницький район">Дарницький р-н</a>, Александра Мишуги ул., 10 (изображение 5) Продаж комерційної нерухомості, 182&nbsp;кв.м, под офис, <a class="location-link" href="/kiev/" title="Недвижимость Київ">Київ</a>, <a class="location-link" href="/kiev/darnickij/" title="Недвижимость Дарницький район">Дарницький р-н</a>, Александра Мишуги ул., 10 (изображение 6) Продаж комерційної нерухомості, 182&nbsp;кв.м, под офис, <a class="location-link" href="/kiev/" title="Недвижимость Київ">Київ</a>, <a class="location-link" href="/kiev/darnickij/" title="Недвижимость Дарницький район">Дарницький р-н</a>, Александра Мишуги ул., 10 (изображение 7) Продаж комерційної нерухомості, 182&nbsp;кв.м, под офис, <a class="location-link" href="/kiev/" title="Недвижимость Київ">Київ</a>, <a class="location-link" href="/kiev/darnickij/" title="Недвижимость Дарницький район">Дарницький р-н</a>, Александра Мишуги ул., 10 (изображение 8) Продаж комерційної нерухомості, 182&nbsp;кв.м, под офис, <a class="location-link" href="/kiev/" title="Недвижимость Київ">Київ</a>, <a class="location-link" href="/kiev/darnickij/" title="Недвижимость Дарницький район">Дарницький р-н</a>, Александра Мишуги ул., 10 (изображение 9) Продаж комерційної нерухомості, 182&nbsp;кв.м, под офис, <a class="location-link" href="/kiev/" title="Недвижимость Київ">Київ</a>, <a class="location-link" href="/kiev/darnickij/" title="Недвижимость Дарницький район">Дарницький р-н</a>, Александра Мишуги ул., 10 (изображение 10) Продаж комерційної нерухомості, 182&nbsp;кв.м, под офис, <a class="location-link" href="/kiev/" title="Недвижимость Київ">Київ</a>, <a class="location-link" href="/kiev/darnickij/" title="Недвижимость Дарницький район">Дарницький р-н</a>, Александра Мишуги ул., 10 (изображение 11)
Додано/оновлено
02.05.2026

Дивіться також

130 000 $

Київ, Дарницький р-н, Александра Мишуги ул., 10

165 900 $

Київ, Дарницький р-н, Александра Мишуги ул., 10

216 000 $

Київ, Дарницький р-н, Александра Мишуги ул., 10

всі пропозиції в категорії продажа офисов в Киеве.

Оголошення №4082573
  • (096) XXX‑XX‑XX
показати
Поділитися
поскаржитися на це оголошення
скасувати
Вашу скаргу успішно надіслано. Дякуємо, що повідомили про проблему. закрити повідомлення
Не можете знайти потрібну нерухомість? Залишіть заявку ріелторам Київ Добавить заявку