logo

Оренда окремої будівлі/побудови, 89 кв.м

Стандартне розміщення Додати в обране
Цена аренды
65 000 грн./мес. за все
Розташування
Київ, Шевченківський р-н, Глубочицкая ул., 13
Відправник
Телефони
  • (067) XXX‑XX‑XX
показать
Тип пропозиції
только аренда
Тип об’єкта
окрема будівля/будівля
Площа
89 кв.м

Деталі пропозиції

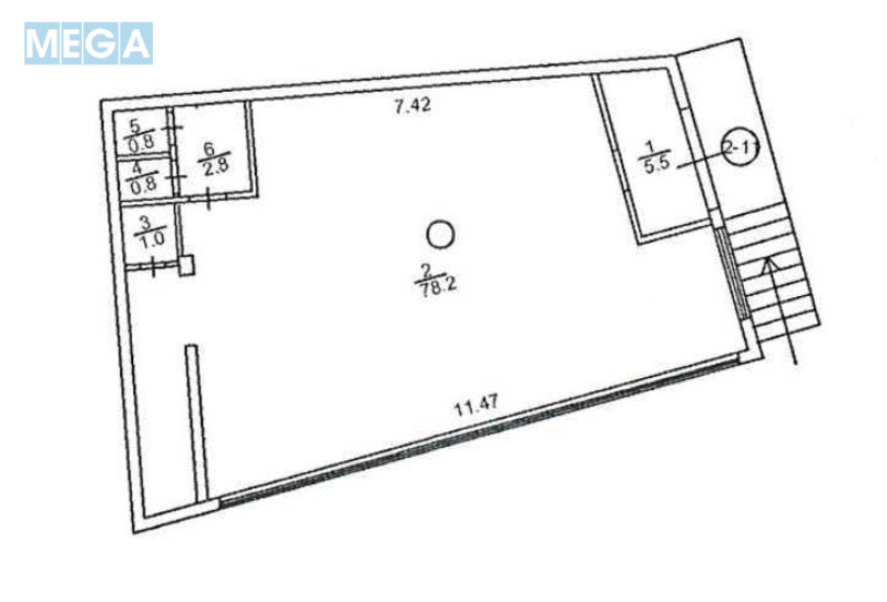
Пропонуємо оренду приміщення 89 м. кв. ЖК Львівський квартал, фасадна секція. Ідеально під кафе, банківське відділення, шоурум.

Електрика 25 кВт (380 В). Опалення індивідуальне за побутовим тарифом.

Планування на фото. 2 окремих входи, невелика тераса, фасадні вікна на сквер Гейдара Алієва. Проїзна та видова ділянка вул. Глибочицької. Поточний ремонт на фото.

Оплата 20 євро/м.кв, без комісії. Розраховуємо на довгострокову оренду.
Оренда окремої будівлі/побудови, 89&nbsp;кв.м, <a class="location-link" href="/kiev/" title="Недвижимость Київ">Київ</a>, <a class="location-link" href="/kiev/shevchenkovskij/" title="Недвижимость Шевченківський район">Шевченківський р-н</a>, Глубочицкая ул., 13 (изображение 1) Оренда окремої будівлі/побудови, 89&nbsp;кв.м, <a class="location-link" href="/kiev/" title="Недвижимость Київ">Київ</a>, <a class="location-link" href="/kiev/shevchenkovskij/" title="Недвижимость Шевченківський район">Шевченківський р-н</a>, Глубочицкая ул., 13 (изображение 2) Оренда окремої будівлі/побудови, 89&nbsp;кв.м, <a class="location-link" href="/kiev/" title="Недвижимость Київ">Київ</a>, <a class="location-link" href="/kiev/shevchenkovskij/" title="Недвижимость Шевченківський район">Шевченківський р-н</a>, Глубочицкая ул., 13 (изображение 3) Оренда окремої будівлі/побудови, 89&nbsp;кв.м, <a class="location-link" href="/kiev/" title="Недвижимость Київ">Київ</a>, <a class="location-link" href="/kiev/shevchenkovskij/" title="Недвижимость Шевченківський район">Шевченківський р-н</a>, Глубочицкая ул., 13 (изображение 4) Оренда окремої будівлі/побудови, 89&nbsp;кв.м, <a class="location-link" href="/kiev/" title="Недвижимость Київ">Київ</a>, <a class="location-link" href="/kiev/shevchenkovskij/" title="Недвижимость Шевченківський район">Шевченківський р-н</a>, Глубочицкая ул., 13 (изображение 5) Оренда окремої будівлі/побудови, 89&nbsp;кв.м, <a class="location-link" href="/kiev/" title="Недвижимость Київ">Київ</a>, <a class="location-link" href="/kiev/shevchenkovskij/" title="Недвижимость Шевченківський район">Шевченківський р-н</a>, Глубочицкая ул., 13 (изображение 6) Оренда окремої будівлі/побудови, 89&nbsp;кв.м, <a class="location-link" href="/kiev/" title="Недвижимость Київ">Київ</a>, <a class="location-link" href="/kiev/shevchenkovskij/" title="Недвижимость Шевченківський район">Шевченківський р-н</a>, Глубочицкая ул., 13 (изображение 7) Оренда окремої будівлі/побудови, 89&nbsp;кв.м, <a class="location-link" href="/kiev/" title="Недвижимость Київ">Київ</a>, <a class="location-link" href="/kiev/shevchenkovskij/" title="Недвижимость Шевченківський район">Шевченківський р-н</a>, Глубочицкая ул., 13 (изображение 8)
Додано/оновлено
02.05.2026

Дивіться також

65 000 грн./мес. за все

Київ, Шевченківський р-н, Тараса Шевченка бульв., 31

44 000 грн./мес. за все

Київ, Шевченківський р-н, Тараса Шевченка бульв., 31

45 000 грн./мес. за все

Київ, Шевченківський р-н, Тараса Шевченка бульв., 38

всі пропозиції в категорії аренда склада в Киеве.

Оголошення №4082614
  • (067) XXX‑XX‑XX
показати
Поділитися
поскаржитися на це оголошення
скасувати
Вашу скаргу успішно надіслано. Дякуємо, що повідомили про проблему. закрити повідомлення
Не можете знайти потрібну нерухомість? Залишіть заявку ріелторам Київ Добавить заявку