logo

Продаж дома, 1  поверх, 137,40 кв.м, 5 кімнат, ділянка 7 соток

Стандартне розміщення Додати в обране
Цена
140 000 $
Комісія рієлтора
4
Розташування
Київ, Святошинський р-н, 11-а Садова вул., 43
Відправник
Телефони
  • (050) XXX‑XX‑XX
показать
Призначення
під дачу
Поверхів
1
Кімнат
5
Площа будинку
137.4 кв.м
Площа ділянки
7 соток
Матеріал будинку
монолитно-кирпичный

Деталі пропозиції

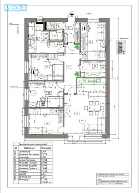
Сучасний будинок преміум-класу в Києві (Берківці).
Пропонується до продажу новий приватний будинок, виконаний у сучасному стилі з акцентом на комфорт, якість та продумане планування.
Площа 137.40 кв.м, ділянка 7 соток.
Простора кухня-вітальня з панорамними вікнами та виходом на терасу, 4 спальні, гардеробна, 2 санвузли. Окрема перевага повноцінний підвал, який може слугувати як укриттям, так і функціональним простором для зберігання чи відпочинку.
Будинок збудований з якісних матеріалів: газоблок з утепленням, надійний фундамент, енергоефективні вікна. Повністю виконаний сучасний ремонт у нейтральному стилі.
Інженерія продумана до деталей: тепла підлога, вентиляція, свердловина, підготовка під збільшення електропотужності.
В наявності готовий дизайн-проєкт гармонійний простір вже спланований, залишається лише реалізувати під свій стиль.
Територія облаштована: закрита ділянка, баня / господарський блок, підготовка під автоматичні ворота.
Зручна локація: швидкий доступ до інфраструктури та метро.
Вартість: 140 000 $.
Зацікавленим надам більше деталей та організую перегляд.
Продаж дома, 1&nbsp; поверх, 137,40&nbsp;кв.м, 5&nbsp;кімнат, ділянка 7&nbsp;соток, <a class="location-link" href="/kiev/" title="Недвижимость Київ">Київ</a>, <a class="location-link" href="/kiev/svyatoshinskij/" title="Недвижимость Святошинський район">Святошинський р-н</a>, 11-а Садова вул., 43 (изображение 1) Продаж дома, 1&nbsp; поверх, 137,40&nbsp;кв.м, 5&nbsp;кімнат, ділянка 7&nbsp;соток, <a class="location-link" href="/kiev/" title="Недвижимость Київ">Київ</a>, <a class="location-link" href="/kiev/svyatoshinskij/" title="Недвижимость Святошинський район">Святошинський р-н</a>, 11-а Садова вул., 43 (изображение 2) Продаж дома, 1&nbsp; поверх, 137,40&nbsp;кв.м, 5&nbsp;кімнат, ділянка 7&nbsp;соток, <a class="location-link" href="/kiev/" title="Недвижимость Київ">Київ</a>, <a class="location-link" href="/kiev/svyatoshinskij/" title="Недвижимость Святошинський район">Святошинський р-н</a>, 11-а Садова вул., 43 (изображение 3) Продаж дома, 1&nbsp; поверх, 137,40&nbsp;кв.м, 5&nbsp;кімнат, ділянка 7&nbsp;соток, <a class="location-link" href="/kiev/" title="Недвижимость Київ">Київ</a>, <a class="location-link" href="/kiev/svyatoshinskij/" title="Недвижимость Святошинський район">Святошинський р-н</a>, 11-а Садова вул., 43 (изображение 4) Продаж дома, 1&nbsp; поверх, 137,40&nbsp;кв.м, 5&nbsp;кімнат, ділянка 7&nbsp;соток, <a class="location-link" href="/kiev/" title="Недвижимость Київ">Київ</a>, <a class="location-link" href="/kiev/svyatoshinskij/" title="Недвижимость Святошинський район">Святошинський р-н</a>, 11-а Садова вул., 43 (изображение 5) Продаж дома, 1&nbsp; поверх, 137,40&nbsp;кв.м, 5&nbsp;кімнат, ділянка 7&nbsp;соток, <a class="location-link" href="/kiev/" title="Недвижимость Київ">Київ</a>, <a class="location-link" href="/kiev/svyatoshinskij/" title="Недвижимость Святошинський район">Святошинський р-н</a>, 11-а Садова вул., 43 (изображение 6) Продаж дома, 1&nbsp; поверх, 137,40&nbsp;кв.м, 5&nbsp;кімнат, ділянка 7&nbsp;соток, <a class="location-link" href="/kiev/" title="Недвижимость Київ">Київ</a>, <a class="location-link" href="/kiev/svyatoshinskij/" title="Недвижимость Святошинський район">Святошинський р-н</a>, 11-а Садова вул., 43 (изображение 7) Продаж дома, 1&nbsp; поверх, 137,40&nbsp;кв.м, 5&nbsp;кімнат, ділянка 7&nbsp;соток, <a class="location-link" href="/kiev/" title="Недвижимость Київ">Київ</a>, <a class="location-link" href="/kiev/svyatoshinskij/" title="Недвижимость Святошинський район">Святошинський р-н</a>, 11-а Садова вул., 43 (изображение 8) Продаж дома, 1&nbsp; поверх, 137,40&nbsp;кв.м, 5&nbsp;кімнат, ділянка 7&nbsp;соток, <a class="location-link" href="/kiev/" title="Недвижимость Київ">Київ</a>, <a class="location-link" href="/kiev/svyatoshinskij/" title="Недвижимость Святошинський район">Святошинський р-н</a>, 11-а Садова вул., 43 (изображение 9) Продаж дома, 1&nbsp; поверх, 137,40&nbsp;кв.м, 5&nbsp;кімнат, ділянка 7&nbsp;соток, <a class="location-link" href="/kiev/" title="Недвижимость Київ">Київ</a>, <a class="location-link" href="/kiev/svyatoshinskij/" title="Недвижимость Святошинський район">Святошинський р-н</a>, 11-а Садова вул., 43 (изображение 10) Продаж дома, 1&nbsp; поверх, 137,40&nbsp;кв.м, 5&nbsp;кімнат, ділянка 7&nbsp;соток, <a class="location-link" href="/kiev/" title="Недвижимость Київ">Київ</a>, <a class="location-link" href="/kiev/svyatoshinskij/" title="Недвижимость Святошинський район">Святошинський р-н</a>, 11-а Садова вул., 43 (изображение 11) Продаж дома, 1&nbsp; поверх, 137,40&nbsp;кв.м, 5&nbsp;кімнат, ділянка 7&nbsp;соток, <a class="location-link" href="/kiev/" title="Недвижимость Київ">Київ</a>, <a class="location-link" href="/kiev/svyatoshinskij/" title="Недвижимость Святошинський район">Святошинський р-н</a>, 11-а Садова вул., 43 (изображение 12) Продаж дома, 1&nbsp; поверх, 137,40&nbsp;кв.м, 5&nbsp;кімнат, ділянка 7&nbsp;соток, <a class="location-link" href="/kiev/" title="Недвижимость Київ">Київ</a>, <a class="location-link" href="/kiev/svyatoshinskij/" title="Недвижимость Святошинський район">Святошинський р-н</a>, 11-а Садова вул., 43 (изображение 13) Продаж дома, 1&nbsp; поверх, 137,40&nbsp;кв.м, 5&nbsp;кімнат, ділянка 7&nbsp;соток, <a class="location-link" href="/kiev/" title="Недвижимость Київ">Київ</a>, <a class="location-link" href="/kiev/svyatoshinskij/" title="Недвижимость Святошинський район">Святошинський р-н</a>, 11-а Садова вул., 43 (изображение 14) Продаж дома, 1&nbsp; поверх, 137,40&nbsp;кв.м, 5&nbsp;кімнат, ділянка 7&nbsp;соток, <a class="location-link" href="/kiev/" title="Недвижимость Київ">Київ</a>, <a class="location-link" href="/kiev/svyatoshinskij/" title="Недвижимость Святошинський район">Святошинський р-н</a>, 11-а Садова вул., 43 (изображение 15) Продаж дома, 1&nbsp; поверх, 137,40&nbsp;кв.м, 5&nbsp;кімнат, ділянка 7&nbsp;соток, <a class="location-link" href="/kiev/" title="Недвижимость Київ">Київ</a>, <a class="location-link" href="/kiev/svyatoshinskij/" title="Недвижимость Святошинський район">Святошинський р-н</a>, 11-а Садова вул., 43 (изображение 16) Продаж дома, 1&nbsp; поверх, 137,40&nbsp;кв.м, 5&nbsp;кімнат, ділянка 7&nbsp;соток, <a class="location-link" href="/kiev/" title="Недвижимость Київ">Київ</a>, <a class="location-link" href="/kiev/svyatoshinskij/" title="Недвижимость Святошинський район">Святошинський р-н</a>, 11-а Садова вул., 43 (изображение 17) Продаж дома, 1&nbsp; поверх, 137,40&nbsp;кв.м, 5&nbsp;кімнат, ділянка 7&nbsp;соток, <a class="location-link" href="/kiev/" title="Недвижимость Київ">Київ</a>, <a class="location-link" href="/kiev/svyatoshinskij/" title="Недвижимость Святошинський район">Святошинський р-н</a>, 11-а Садова вул., 43 (изображение 18) Продаж дома, 1&nbsp; поверх, 137,40&nbsp;кв.м, 5&nbsp;кімнат, ділянка 7&nbsp;соток, <a class="location-link" href="/kiev/" title="Недвижимость Київ">Київ</a>, <a class="location-link" href="/kiev/svyatoshinskij/" title="Недвижимость Святошинський район">Святошинський р-н</a>, 11-а Садова вул., 43 (изображение 19) Продаж дома, 1&nbsp; поверх, 137,40&nbsp;кв.м, 5&nbsp;кімнат, ділянка 7&nbsp;соток, <a class="location-link" href="/kiev/" title="Недвижимость Київ">Київ</a>, <a class="location-link" href="/kiev/svyatoshinskij/" title="Недвижимость Святошинський район">Святошинський р-н</a>, 11-а Садова вул., 43 (изображение 20) Продаж дома, 1&nbsp; поверх, 137,40&nbsp;кв.м, 5&nbsp;кімнат, ділянка 7&nbsp;соток, <a class="location-link" href="/kiev/" title="Недвижимость Київ">Київ</a>, <a class="location-link" href="/kiev/svyatoshinskij/" title="Недвижимость Святошинський район">Святошинський р-н</a>, 11-а Садова вул., 43 (изображение 21) Продаж дома, 1&nbsp; поверх, 137,40&nbsp;кв.м, 5&nbsp;кімнат, ділянка 7&nbsp;соток, <a class="location-link" href="/kiev/" title="Недвижимость Київ">Київ</a>, <a class="location-link" href="/kiev/svyatoshinskij/" title="Недвижимость Святошинський район">Святошинський р-н</a>, 11-а Садова вул., 43 (изображение 22)
Додано/оновлено
17.04.2026

Дивіться також

75 000 $

Київ, Святошинський р-н, Академика Палладина просп.

всі пропозиції в категорії продажа дач в Киеве.

Оголошення №4083522
  • (050) XXX‑XX‑XX
показати
Поділитися
поскаржитися на це оголошення
скасувати
Вашу скаргу успішно надіслано. Дякуємо, що повідомили про проблему. закрити повідомлення
Не можете знайти потрібну нерухомість? Залишіть заявку ріелторам Київ Добавить заявку