Стандартне розміщення
Додати в обране
- Цена продажи
-
133 000 $
- Розташування
- Харків, Основ'янський (Червонозаводський) р-н, Університетська вул., 35/2
- Відправник
-
- Телефони
-
- (067) XXX‑XX‑XX
- (067) XXX‑XX‑XX
- (067) XXX‑XX‑XX
- (050) XXX‑XX‑XX
- Тип пропозиції
- только продажа
- Призначення об’єкта
- офіс
- Площа
- 181.5 кв.м
Деталі пропозиції
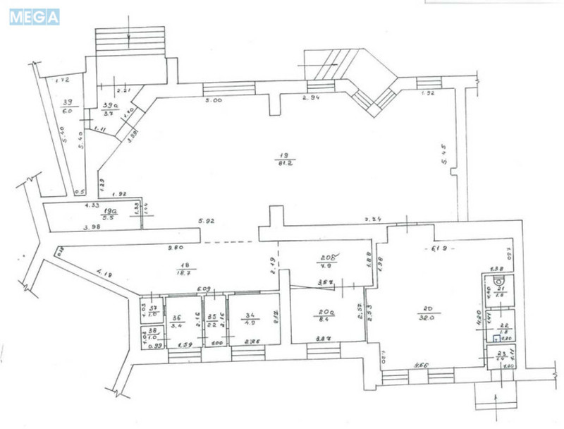
продаж нежитлового приміщення: м.Харків, вул.Університетська, 35/2.
Приміщення розташоване в 9-поверховому житлового будинку, на перетині вул.Університетська та вул.Кооперативна.
Загальна площа 181,5 кв.м. (1-й поверх).
Приміщення має два виходи: фасадний (на вул.Кооперативна) та запасний (у двір житлового будинку).
Вікна виходять на вул.Кооперативна та у двір.
Приміщення обладнані системою відеоспостереження, пожежно-тривожної сигналізації, кондиціонерами.
Планування приміщення дозволяє використовувати його в якості офісних або торгівельних приміщень.
Електропотужність 20 кВт.
Опалення централізоване, є теплова рамка та окремий лічильник для 4 нежитлових приміщень на 1 поверсі будівлі. Лічильник в приміщенні іншого власника.
Електропостачання, водопостачання, опалення в наявності.
Власник - юр.особа. Вартість із ПДВ.
Приміщення розташоване в 9-поверховому житлового будинку, на перетині вул.Університетська та вул.Кооперативна.
Загальна площа 181,5 кв.м. (1-й поверх).
Приміщення має два виходи: фасадний (на вул.Кооперативна) та запасний (у двір житлового будинку).
Вікна виходять на вул.Кооперативна та у двір.
Приміщення обладнані системою відеоспостереження, пожежно-тривожної сигналізації, кондиціонерами.
Планування приміщення дозволяє використовувати його в якості офісних або торгівельних приміщень.
Електропотужність 20 кВт.
Опалення централізоване, є теплова рамка та окремий лічильник для 4 нежитлових приміщень на 1 поверсі будівлі. Лічильник в приміщенні іншого власника.
Електропостачання, водопостачання, опалення в наявності.
Власник - юр.особа. Вартість із ПДВ.























- Додано/оновлено
- 18.10.2025
всі пропозиції в категорії продажа офисов в Харькове.