Преміум розміщення
Додати в обране
- Цена
-
46 000 $
- Розташування
- Київ, Шевченківський р-н, Довнар-Запольского ул., 10
- Відправник
-
Александр усі оголошення відправника
- Телефони
-
- (099) XXX‑XX‑XX
- Кімнат
- 2 кімнати
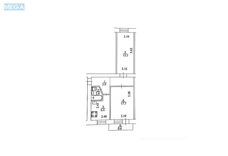
- Площа (загальна/житлова/кухня)
- 43/29/6 кв. м
- Поверх
- 4 поверх
- Поверховість будинку
- 5 поверхів
Деталі пропозиції
Супер ціна! Продаж квартири по вул. Довнар-Запольського, 10. 4 поверх п’ятиповерхівки. Не кутова, суха та тепла. Має роздільне планування. Кімнати 12,2, та 17,7 кв. м. Загальна площа 43,6 кв. м. Санвузол суміжний. На підлозі паркет. Встановлені склопакети. Балкон засклений та обшитий вагонкою. Встановлені лічильники на світло та воду. Система опалення централізована, є газ. Будинок цегляний. У затишному зеленому дворі є парковка для мешканців будинку. Поруч вся необхідна інфраструктура для комфортного життя. До метро Лукянівська 7 хвилин пішки, зупинка 3 видів транспорту поруч. Встановлені додаткові бронедвері. Проведене кабельне та цифрове ТБ, швидкісний інтернет. Квартира повністю звільнена від меблів та готова для ремонту. Ціна: 46 000 у. о. Продаж від власника. Представник без комісії Олександр.

















- Додано/оновлено
- 17.10.2025
Дивіться також
всі пропозиції в категорії куплю квартиру в Киеве.