Стандартное размещение
Добавить в избранное
- Цена аренды
-
304 грн./мес. за все
- Расположение
- Харків, Слобідський (Комінтернівський) р-н, проспект Байрона, 23а
- Отправитель
-
АБ "УКРГАЗБАНК" все объявления отправителя
- Телефоны
-
- (044) XXX‑XX‑XX
- Тип пропозиції
- только аренда
- Площа
- 1 кв.м
Подробности предложения
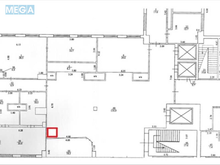
as995910.АБ УКРГАЗБАНК оголошує про передачу нерухомого майна в оренду на аукціоні, а саме щодо укладання договору оренди (тимчасового платного користування) Частина нежитлового приміщення №49, площею 1,0 кв. м, що знаходяться на першому поверсі нежитлової будівлі літ. А-8, загальною площею 7 744,80 кв.м, за адресою: м. Харків, проспект Байрона (стара назва - проспект Героїв Сталінграда), буд. 23-А. (для розміщення банкомату), відповідно до Схеми меж оренди.
Стартова орендна плата, грн./міс - 304,00 грн (триста чотири грн 00 коп.), з ПДВ
Детальніше з умовами укладання договору оренди можна ознайомитись за посиланням:
Стартова орендна плата, грн./міс - 304,00 грн (триста чотири грн 00 коп.), з ПДВ
Детальніше з умовами укладання договору оренди можна ознайомитись за посиланням:




- Добавлено/обновлено
- 21.10.2025
См. все предложения в категории снять офис в Харькове.