logo

Оренда комерційної нерухомості, 1 700 кв.м, под офис

Преміум розміщення Додати в обране
Цена аренды
12 $/мес. за кв. м
Розташування
Київ, Шевченківський р-н, Шолуденка вул., 3
Відправник
Телефони
  • (068) XXX‑XX‑XX
показать
Тип пропозиції
только аренда
Призначення об’єкта
офіс
Площа
1700 кв.м

Деталі пропозиції

Оренда офісу(аренда офиса)ВІД ВЛАСНИКА, ВЛАСНИЙ ДИЗЕЛЬ ГЕНЕРАТОР, АВТОНОМНЕ ОПАЛЕННЯ, УКРИТТЯ, сучасні інженерні системи, 5 провайдерів інтернету на вибір.
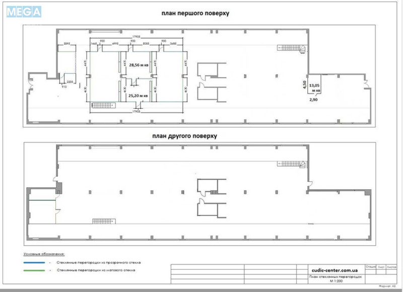
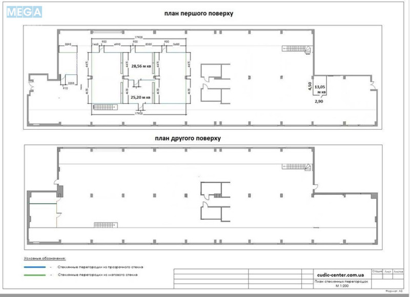
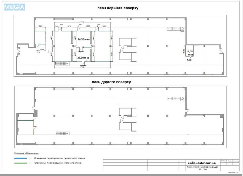
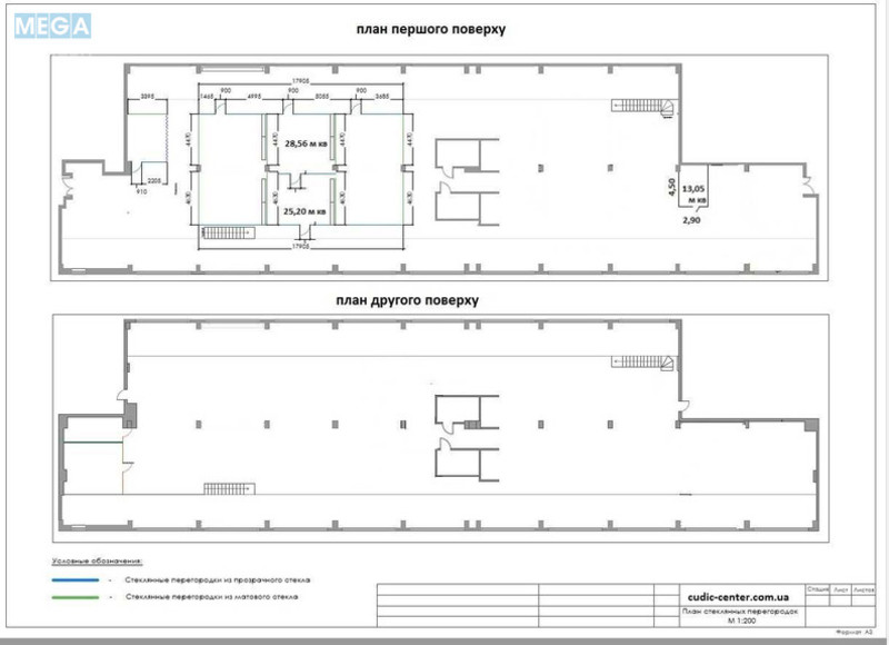
Дворівневе офісне приміщення в Бізнес-Центрі Cubic-Center по вул. Шолуденка 3, на 1-му поверсі площею 1712 м2 в гарному стані, кабінети з скляними перегородками, open space, власні с/в із встановленим сантехнічним обладнанням, 4 (чотири) міні кухні з меблями. Приміщення здається без меблів, але є можливість обладнати приміщення меблями (оренда меблів за домовленістю, в залежності від комплектації).
Планування:
Площа: 1-й поверх + 2-й рівень = 1712,00 кв.м. (відповідно 1000,00 м кв + 712,00 м кв). Є можливість розділити/здавати це приміщення, як 2 окремих, а саме:
Офіс 1= 937,4 м2, офіс 2= 739,2 м2 (За потреби планування і фото надішлю додатково)
За потреби планування і фото надішлю додатково.
Оренда: еквівалент 12$/м2 з ОРЕХ,(курс НБУ), додатково тільки електроенергія.
Коефіцієнт загальних приміщень не застосовується!
Будівля розташована в 100 м. від пр. Берестейського, 10 хв. пішки від ст. метро Політехнічний інститут і 12 хв. пішки від ст. метро Лук’янівська, ст. метро Вокзальна
Оренда комерційної нерухомості, 1&nbsp;700&nbsp;кв.м, под офис, <a class="location-link" href="/kiev/" title="Недвижимость Київ">Київ</a>, <a class="location-link" href="/kiev/shevchenkovskij/" title="Недвижимость Шевченківський район">Шевченківський р-н</a>, Шолуденка вул., 3 (изображение 1) Оренда комерційної нерухомості, 1&nbsp;700&nbsp;кв.м, под офис, <a class="location-link" href="/kiev/" title="Недвижимость Київ">Київ</a>, <a class="location-link" href="/kiev/shevchenkovskij/" title="Недвижимость Шевченківський район">Шевченківський р-н</a>, Шолуденка вул., 3 (изображение 2) Оренда комерційної нерухомості, 1&nbsp;700&nbsp;кв.м, под офис, <a class="location-link" href="/kiev/" title="Недвижимость Київ">Київ</a>, <a class="location-link" href="/kiev/shevchenkovskij/" title="Недвижимость Шевченківський район">Шевченківський р-н</a>, Шолуденка вул., 3 (изображение 3) Оренда комерційної нерухомості, 1&nbsp;700&nbsp;кв.м, под офис, <a class="location-link" href="/kiev/" title="Недвижимость Київ">Київ</a>, <a class="location-link" href="/kiev/shevchenkovskij/" title="Недвижимость Шевченківський район">Шевченківський р-н</a>, Шолуденка вул., 3 (изображение 4) Оренда комерційної нерухомості, 1&nbsp;700&nbsp;кв.м, под офис, <a class="location-link" href="/kiev/" title="Недвижимость Київ">Київ</a>, <a class="location-link" href="/kiev/shevchenkovskij/" title="Недвижимость Шевченківський район">Шевченківський р-н</a>, Шолуденка вул., 3 (изображение 5) Оренда комерційної нерухомості, 1&nbsp;700&nbsp;кв.м, под офис, <a class="location-link" href="/kiev/" title="Недвижимость Київ">Київ</a>, <a class="location-link" href="/kiev/shevchenkovskij/" title="Недвижимость Шевченківський район">Шевченківський р-н</a>, Шолуденка вул., 3 (изображение 6) Оренда комерційної нерухомості, 1&nbsp;700&nbsp;кв.м, под офис, <a class="location-link" href="/kiev/" title="Недвижимость Київ">Київ</a>, <a class="location-link" href="/kiev/shevchenkovskij/" title="Недвижимость Шевченківський район">Шевченківський р-н</a>, Шолуденка вул., 3 (изображение 7) Оренда комерційної нерухомості, 1&nbsp;700&nbsp;кв.м, под офис, <a class="location-link" href="/kiev/" title="Недвижимость Київ">Київ</a>, <a class="location-link" href="/kiev/shevchenkovskij/" title="Недвижимость Шевченківський район">Шевченківський р-н</a>, Шолуденка вул., 3 (изображение 8) Оренда комерційної нерухомості, 1&nbsp;700&nbsp;кв.м, под офис, <a class="location-link" href="/kiev/" title="Недвижимость Київ">Київ</a>, <a class="location-link" href="/kiev/shevchenkovskij/" title="Недвижимость Шевченківський район">Шевченківський р-н</a>, Шолуденка вул., 3 (изображение 9) Оренда комерційної нерухомості, 1&nbsp;700&nbsp;кв.м, под офис, <a class="location-link" href="/kiev/" title="Недвижимость Київ">Київ</a>, <a class="location-link" href="/kiev/shevchenkovskij/" title="Недвижимость Шевченківський район">Шевченківський р-н</a>, Шолуденка вул., 3 (изображение 10) Оренда комерційної нерухомості, 1&nbsp;700&nbsp;кв.м, под офис, <a class="location-link" href="/kiev/" title="Недвижимость Київ">Київ</a>, <a class="location-link" href="/kiev/shevchenkovskij/" title="Недвижимость Шевченківський район">Шевченківський р-н</a>, Шолуденка вул., 3 (изображение 11) Оренда комерційної нерухомості, 1&nbsp;700&nbsp;кв.м, под офис, <a class="location-link" href="/kiev/" title="Недвижимость Київ">Київ</a>, <a class="location-link" href="/kiev/shevchenkovskij/" title="Недвижимость Шевченківський район">Шевченківський р-н</a>, Шолуденка вул., 3 (изображение 12) Оренда комерційної нерухомості, 1&nbsp;700&nbsp;кв.м, под офис, <a class="location-link" href="/kiev/" title="Недвижимость Київ">Київ</a>, <a class="location-link" href="/kiev/shevchenkovskij/" title="Недвижимость Шевченківський район">Шевченківський р-н</a>, Шолуденка вул., 3 (изображение 13) Оренда комерційної нерухомості, 1&nbsp;700&nbsp;кв.м, под офис, <a class="location-link" href="/kiev/" title="Недвижимость Київ">Київ</a>, <a class="location-link" href="/kiev/shevchenkovskij/" title="Недвижимость Шевченківський район">Шевченківський р-н</a>, Шолуденка вул., 3 (изображение 14) Оренда комерційної нерухомості, 1&nbsp;700&nbsp;кв.м, под офис, <a class="location-link" href="/kiev/" title="Недвижимость Київ">Київ</a>, <a class="location-link" href="/kiev/shevchenkovskij/" title="Недвижимость Шевченківський район">Шевченківський р-н</a>, Шолуденка вул., 3 (изображение 15) Оренда комерційної нерухомості, 1&nbsp;700&nbsp;кв.м, под офис, <a class="location-link" href="/kiev/" title="Недвижимость Київ">Київ</a>, <a class="location-link" href="/kiev/shevchenkovskij/" title="Недвижимость Шевченківський район">Шевченківський р-н</a>, Шолуденка вул., 3 (изображение 16) Оренда комерційної нерухомості, 1&nbsp;700&nbsp;кв.м, под офис, <a class="location-link" href="/kiev/" title="Недвижимость Київ">Київ</a>, <a class="location-link" href="/kiev/shevchenkovskij/" title="Недвижимость Шевченківський район">Шевченківський р-н</a>, Шолуденка вул., 3 (изображение 17)
Додано/оновлено
21.05.2026

Дивіться також

15 $/мес. за кв. м

Київ, Шевченківський р-н, Тараса Шевченка бульв., 37/122

3 000 $/мес. за все

Київ, Шевченківський р-н, Велика Житомирська вул., 38б

1 400 $/мес. за все

Київ, Шевченківський р-н, Саксаганського вул., 99

всі пропозиції в категорії аренда коммерческой недвижимости в Киеве.

Оголошення №4035971
  • (068) XXX‑XX‑XX
показати
Поділитися
поскаржитися на це оголошення
скасувати
Вашу скаргу успішно надіслано. Дякуємо, що повідомили про проблему. закрити повідомлення
Не можете знайти потрібну нерухомість? Залишіть заявку ріелторам Київ Добавить заявку