Стандартне розміщення
Додати в обране
- Цена продажи
-
177 800 $
- Розташування
- Київ, Дарницький р-н, Александра Мишуги ул., 10
- Відправник
-
Владелец усі оголошення відправника
- Телефони
-
- (096) XXX‑XX‑XX
- Тип пропозиції
- только продажа
- Призначення об’єкта
- офіс
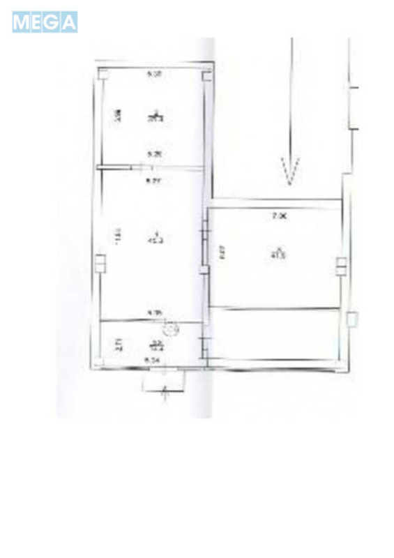
- Площа
- 118.5 кв.м
Деталі пропозиції
ПРОДАМ нежитл.приміщ. S=118,5 м2, ст.м.Позняки, БЦ Паралель
Пропозиція від Власника: ПРОДАМ своє нежитлове приміщення загал. площею = 118,5 m2. Орендний бізнес. Приміщення розташоване на 1-му поверсі Бізнес центра Паралель. Свій генератор! Великі вітринні вікна з фасаду. БЦ розташований на території нового, зданого і заселеного ЖК, з високою щільністю населення. Ст.м .Позняки 50 м. Поруч офіси, банки, термінали банкомати, супермаркети, поштові відділення. Кав’ярні, кафе, міні-ресторани. Школи, садочки, дитячі спортивні та розвиваючи клуби. Драйвове місце для Вашого бізнесу. Приміщення належить до комерційної нерухомості. Краще за все використовувати як торгову площу, салон краси, дитячий клуб / школу, офіс. На даний час приміщення винаймають орендарі. Офіс ІТ технологій. Кондиціювання, Відеоспостереження, Охорона, Пожежна сигналізація, Серверна кімната, кабельна мережа інтернету. Світле та просторе приміщення, з дорогим, якісним ремонтом. Висота стелі 2.8 m. Ел/енергія без перебою, БЦ має свій генератор. БЦ збудован та здан в експлуатацію у 2016р.
Вартість 1500 $ / m?. Загальна вартість = 177800 $. Запрошую до співпраці ріелторів.
Власник юридична особа. Контактний тел.:0
Пропозиція від Власника: ПРОДАМ своє нежитлове приміщення загал. площею = 118,5 m2. Орендний бізнес. Приміщення розташоване на 1-му поверсі Бізнес центра Паралель. Свій генератор! Великі вітринні вікна з фасаду. БЦ розташований на території нового, зданого і заселеного ЖК, з високою щільністю населення. Ст.м .Позняки 50 м. Поруч офіси, банки, термінали банкомати, супермаркети, поштові відділення. Кав’ярні, кафе, міні-ресторани. Школи, садочки, дитячі спортивні та розвиваючи клуби. Драйвове місце для Вашого бізнесу. Приміщення належить до комерційної нерухомості. Краще за все використовувати як торгову площу, салон краси, дитячий клуб / школу, офіс. На даний час приміщення винаймають орендарі. Офіс ІТ технологій. Кондиціювання, Відеоспостереження, Охорона, Пожежна сигналізація, Серверна кімната, кабельна мережа інтернету. Світле та просторе приміщення, з дорогим, якісним ремонтом. Висота стелі 2.8 m. Ел/енергія без перебою, БЦ має свій генератор. БЦ збудован та здан в експлуатацію у 2016р.
Вартість 1500 $ / m?. Загальна вартість = 177800 $. Запрошую до співпраці ріелторів.
Власник юридична особа. Контактний тел.:0














- Додано/оновлено
- 14.10.2025
Дивіться також
всі пропозиції в категорії продажа офисов в Киеве.