logo

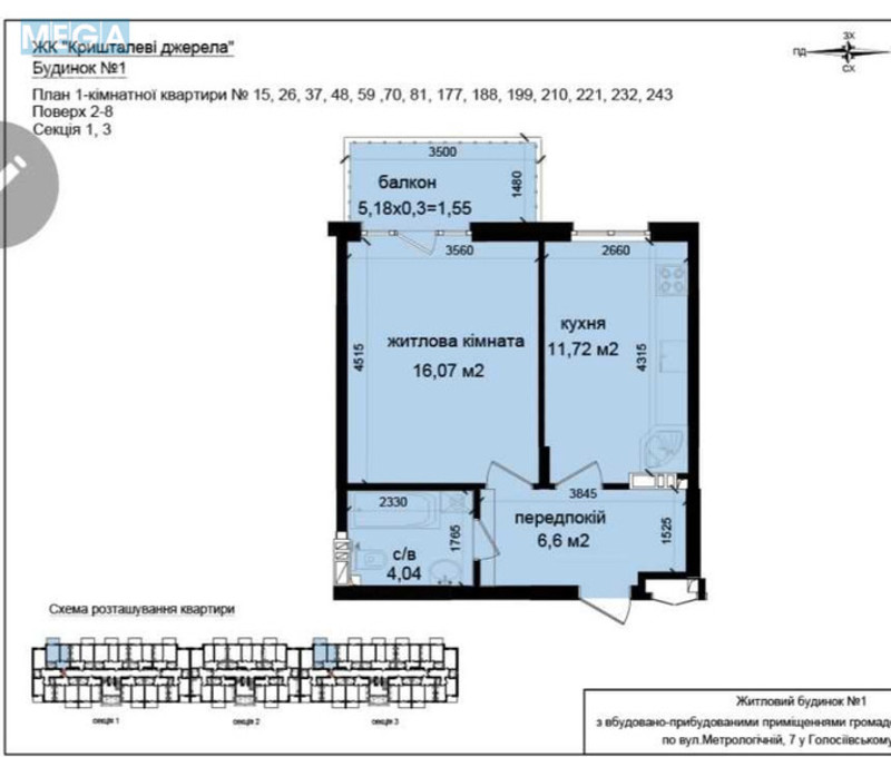
Продаж 1 кімнатної квартири (41/16/12), 8 пов. 10 пов. будинку

Стандартне розміщення Додати в обране
Цена
60 000 $
Розташування
Київ, Голосіївський р-н, Метрологическая ул., 107
Відправник
Телефони
  • (095) XXX‑XX‑XX
  • (063) XXX‑XX‑XX
показать
Кімнат
1 кімната
Площа (загальна/житлова/кухня)
41/16/12 кв. м
Поверх
8 поверх
Поверховість будинку
10 поверхів

Деталі пропозиції

ВИДОВА!

Євідновлення! БЕЗ комісії!

ЖК Кришталеві Джерела,

1к. квартира 41 м2, парк Феофанія.



Голосіївський район,

вул. Метрологічна, 107.

8 поверх 10 поверхового будинку.

Загальна площа квартири - 41м2 .

Вікна виходять на вул. Метрологічна,

на ЗАХІД.

Стан після забудовника, без ремонту.

Балкон з кімнати, стяжка підлоги, радіатори, лічильники газовий, на електрику та на воду. Лічильник на тепло за додаткову плату (8000 грн).

7 квартир на поверсі.



Будинок введений в експлуатацію в 2 кварталі 2022 року, надано поштову адресу. Вже проживають сусіди.

Найближчі будинки у житловому комплексі до парку Феофанія.

Монолітно-каркасна технологія будівництва, газоблок, утеплювач пінопласт 10см та мінеральна вата, панорамні вікна, ліфти від європейського виробника, підвищена звуко та теплоізоляція зовнішніх стін.

Висота стелі 2,75м.

Закрита від сторонніх територія комплексу, охорона. Власна котельна. Перший нежитловий поверх під комерційні приміщення.

Ціна 60 000 у е.

Без коміс.

Оформлення на покупця.
Продаж 1 кімнатної квартири (41/16/12), 8 пов. 10 пов. будинку, <a class="location-link" href="/kiev/" title="Недвижимость Київ">Київ</a>, <a class="location-link" href="/kiev/goloseevskij/" title="Недвижимость Голосіївський район">Голосіївський р-н</a>, Метрологическая ул., 107 (изображение 1) Продаж 1 кімнатної квартири (41/16/12), 8 пов. 10 пов. будинку, <a class="location-link" href="/kiev/" title="Недвижимость Київ">Київ</a>, <a class="location-link" href="/kiev/goloseevskij/" title="Недвижимость Голосіївський район">Голосіївський р-н</a>, Метрологическая ул., 107 (изображение 2) Продаж 1 кімнатної квартири (41/16/12), 8 пов. 10 пов. будинку, <a class="location-link" href="/kiev/" title="Недвижимость Київ">Київ</a>, <a class="location-link" href="/kiev/goloseevskij/" title="Недвижимость Голосіївський район">Голосіївський р-н</a>, Метрологическая ул., 107 (изображение 3) Продаж 1 кімнатної квартири (41/16/12), 8 пов. 10 пов. будинку, <a class="location-link" href="/kiev/" title="Недвижимость Київ">Київ</a>, <a class="location-link" href="/kiev/goloseevskij/" title="Недвижимость Голосіївський район">Голосіївський р-н</a>, Метрологическая ул., 107 (изображение 4) Продаж 1 кімнатної квартири (41/16/12), 8 пов. 10 пов. будинку, <a class="location-link" href="/kiev/" title="Недвижимость Київ">Київ</a>, <a class="location-link" href="/kiev/goloseevskij/" title="Недвижимость Голосіївський район">Голосіївський р-н</a>, Метрологическая ул., 107 (изображение 5) Продаж 1 кімнатної квартири (41/16/12), 8 пов. 10 пов. будинку, <a class="location-link" href="/kiev/" title="Недвижимость Київ">Київ</a>, <a class="location-link" href="/kiev/goloseevskij/" title="Недвижимость Голосіївський район">Голосіївський р-н</a>, Метрологическая ул., 107 (изображение 6) Продаж 1 кімнатної квартири (41/16/12), 8 пов. 10 пов. будинку, <a class="location-link" href="/kiev/" title="Недвижимость Київ">Київ</a>, <a class="location-link" href="/kiev/goloseevskij/" title="Недвижимость Голосіївський район">Голосіївський р-н</a>, Метрологическая ул., 107 (изображение 7) Продаж 1 кімнатної квартири (41/16/12), 8 пов. 10 пов. будинку, <a class="location-link" href="/kiev/" title="Недвижимость Київ">Київ</a>, <a class="location-link" href="/kiev/goloseevskij/" title="Недвижимость Голосіївський район">Голосіївський р-н</a>, Метрологическая ул., 107 (изображение 8)
Додано/оновлено
30.04.2026

Дивіться також

56 000 $

Київ, Голосіївський р-н, Метрологическая ул., 107

60 000 $

Київ, Голосіївський р-н, Метрологическая ул., 107

50 000 $

Київ, Голосіївський р-н, Лятошинського вул., 26Б

всі пропозиції в категорії 1 комнатные квартиры в Киеве.

Оголошення №4076092
  • (095) XXX‑XX‑XX
  • (063) XXX‑XX‑XX
показати
Поділитися
поскаржитися на це оголошення
скасувати
Вашу скаргу успішно надіслано. Дякуємо, що повідомили про проблему. закрити повідомлення
Не можете знайти потрібну нерухомість? Залишіть заявку ріелторам Київ Добавить заявку