logo

Продаж 3 кімнатної квартири (102/86/16), 1 пов. 1 пов. будинку

Стандартне розміщення Додати в обране
Цена
87 000 $
Розташування
Погреби, Деснянська вулиця, 17
Відправник
Телефони
  • (067) XXX‑XX‑XX
показать
Кімнат
3 кімнати
Площа (загальна/житлова/кухня)
102/86/16 кв. м
Поверх
1 поверх, останній
Поверховість будинку
1 поверх

Деталі пропозиції

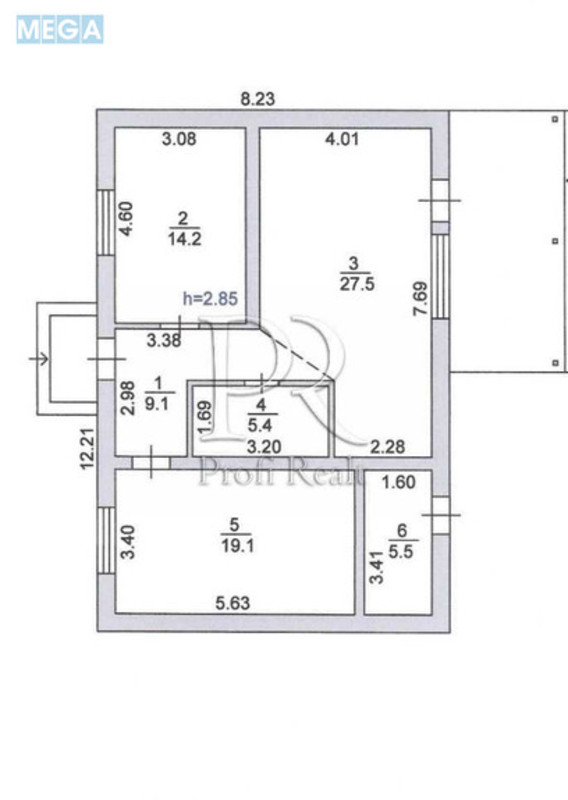
Продається сучасний одноповерховий 3-кімнатний будинок у с. Погреби, вул. Деснянська всього 3 км до Києва. Будинок збудований у 2024 році, розташований у приватному секторі на ділянці 6 соток. Загальна площа 102 м, житлова 86 м, простора кухня 27,5 м. Зручне планування дозволяє створити комфортний простір саме під ваші потреби. Стан під ремонт, що дає можливість реалізувати власний дизайн без переплат за чужі рішення. Інфраструктура поруч: супермаркет Сільпо (300 м), Фора (500 м), АТБ, спорткомплекс Атлетико, тенісні корти, центральний стадіон, школа, дитячий садок, амбулаторія. Тиха локація з швидким доступом до столиці ідеальний варіант для тих, хто хоче жити в приватному будинку поруч із Києвом. ID: 2929
Продаж 3 кімнатної квартири (102/86/16), 1 пов. 1 пов. будинку, <a class="location-link" href="/pogreby-selo-kv-brovarskij-rajon/" title="Недвижимость Погреби">Погреби</a>, Деснянська вулиця, 17 (изображение 1) Продаж 3 кімнатної квартири (102/86/16), 1 пов. 1 пов. будинку, <a class="location-link" href="/pogreby-selo-kv-brovarskij-rajon/" title="Недвижимость Погреби">Погреби</a>, Деснянська вулиця, 17 (изображение 2) Продаж 3 кімнатної квартири (102/86/16), 1 пов. 1 пов. будинку, <a class="location-link" href="/pogreby-selo-kv-brovarskij-rajon/" title="Недвижимость Погреби">Погреби</a>, Деснянська вулиця, 17 (изображение 3) Продаж 3 кімнатної квартири (102/86/16), 1 пов. 1 пов. будинку, <a class="location-link" href="/pogreby-selo-kv-brovarskij-rajon/" title="Недвижимость Погреби">Погреби</a>, Деснянська вулиця, 17 (изображение 4) Продаж 3 кімнатної квартири (102/86/16), 1 пов. 1 пов. будинку, <a class="location-link" href="/pogreby-selo-kv-brovarskij-rajon/" title="Недвижимость Погреби">Погреби</a>, Деснянська вулиця, 17 (изображение 5) Продаж 3 кімнатної квартири (102/86/16), 1 пов. 1 пов. будинку, <a class="location-link" href="/pogreby-selo-kv-brovarskij-rajon/" title="Недвижимость Погреби">Погреби</a>, Деснянська вулиця, 17 (изображение 6) Продаж 3 кімнатної квартири (102/86/16), 1 пов. 1 пов. будинку, <a class="location-link" href="/pogreby-selo-kv-brovarskij-rajon/" title="Недвижимость Погреби">Погреби</a>, Деснянська вулиця, 17 (изображение 7) Продаж 3 кімнатної квартири (102/86/16), 1 пов. 1 пов. будинку, <a class="location-link" href="/pogreby-selo-kv-brovarskij-rajon/" title="Недвижимость Погреби">Погреби</a>, Деснянська вулиця, 17 (изображение 8) Продаж 3 кімнатної квартири (102/86/16), 1 пов. 1 пов. будинку, <a class="location-link" href="/pogreby-selo-kv-brovarskij-rajon/" title="Недвижимость Погреби">Погреби</a>, Деснянська вулиця, 17 (изображение 9) Продаж 3 кімнатної квартири (102/86/16), 1 пов. 1 пов. будинку, <a class="location-link" href="/pogreby-selo-kv-brovarskij-rajon/" title="Недвижимость Погреби">Погреби</a>, Деснянська вулиця, 17 (изображение 10) Продаж 3 кімнатної квартири (102/86/16), 1 пов. 1 пов. будинку, <a class="location-link" href="/pogreby-selo-kv-brovarskij-rajon/" title="Недвижимость Погреби">Погреби</a>, Деснянська вулиця, 17 (изображение 11) Продаж 3 кімнатної квартири (102/86/16), 1 пов. 1 пов. будинку, <a class="location-link" href="/pogreby-selo-kv-brovarskij-rajon/" title="Недвижимость Погреби">Погреби</a>, Деснянська вулиця, 17 (изображение 12) Продаж 3 кімнатної квартири (102/86/16), 1 пов. 1 пов. будинку, <a class="location-link" href="/pogreby-selo-kv-brovarskij-rajon/" title="Недвижимость Погреби">Погреби</a>, Деснянська вулиця, 17 (изображение 13) Продаж 3 кімнатної квартири (102/86/16), 1 пов. 1 пов. будинку, <a class="location-link" href="/pogreby-selo-kv-brovarskij-rajon/" title="Недвижимость Погреби">Погреби</a>, Деснянська вулиця, 17 (изображение 14) Продаж 3 кімнатної квартири (102/86/16), 1 пов. 1 пов. будинку, <a class="location-link" href="/pogreby-selo-kv-brovarskij-rajon/" title="Недвижимость Погреби">Погреби</a>, Деснянська вулиця, 17 (изображение 15)
Додано/оновлено
05.05.2026

всі пропозиції в категорії купить квартиру в Погребы.

Оголошення №4082285
  • (067) XXX‑XX‑XX
показати
Поділитися
поскаржитися на це оголошення
скасувати
Вашу скаргу успішно надіслано. Дякуємо, що повідомили про проблему. закрити повідомлення
Не можете знайти потрібну нерухомість? Залишіть заявку ріелторам Погреби Добавить заявку